海灣氣體滅火施工安裝方案
海灣消防氣體滅火系統施工安裝,消防氣體滅火解決方案,機房氣體滅火系統
電話:18910580194(何經理)

電話:18910580194(何經理)

目 錄
第一章 機房火災危險主要因素 2
1.1網絡機房消防現狀 3
1.2 造成火災的大體原因 3
第二章 機房工組人員的消防意識 5
第三章 機房氣體滅火系統設計要求 6
3.1火災探測方式的選擇 6
3.3滅火劑儲備存裝置數量計算 8
3.5空調通風系統對機房滅火區劃分的影響 10
3.6火警信號集中管理的必要性 11
3.7手動啟動按鈕的唯一性 11
3.8警報裝置的安裝位置和數量 13
第四章 方案編制依據及原則 13
第五章 施工目標與技術方案 14
5.1施工目標 14
5.2施工技術方案 15
5.3施工準備工作計劃 16
5.4初步交貨進度計劃 17
5.5工程質量保證措施 17
第六章 主要設備技術介紹 17
6.1熱氣溶膠滅火裝置 17
6.1.5 熱氣溶膠滅火系統裝置安裝 20
6.1.6 熱氣溶膠滅火系統操作說明 22
6.2 氣體滅火控制裝置 23
第七章 主要設備報價表 25
7.1報價方案1(氣溶膠氣體滅火設備) 25
7.2 報價方案2(七氯丙烷設備) 26
機房電氣的消防安全,必須在設計時就要充分考慮,但是就目前機房建設而言,許多項目業主都以總包的形式包給專業的機房建設公司,合同中涵蓋所有裝修、主設備、軟件以及消防設施,基本達到交鑰匙工程,業主對消防的要求基本上是“消防部門驗收過關,萬事大吉!”,這種消防觀念基本上是停留在被動消費層面,我國的消防管理力量與其它發達國家相比是非常薄弱的,消防部門不可能每個工程都監管的無懈可擊。利潤最大化驅使消防投入在總包合同中艱難前進,投資不足這只是其一;其二,機房主設備大多數是高精尖設備,但消防設施還停留在“通過驗收就行!”的層面,使損失減少到最小可能是每個消防設計人員最想達到的設計境界,目前市場上的不少消防產品可以做到,但大家一提到此問題立刻出現一個問題:錢不夠?。黄淙?,機房建設公司在計算機和裝修方面是很專業的,但對消防應用科學都很陌生,往往在估計投資時過于克扣,使得很多項目估價不足,機房建設公司應該與消防公司經常進行交流,并確定三到四家消防和作單位進行長期合作,這樣一來可以降低造價而提高消防工程的性能。
1.2 造成火災的大體原因
1.2.1電氣線路短路、過載、接觸電阻過大等引發火災事故。
如:1995 廣東汕頭金砂郵電大樓的特大火災,就是因電線老化、絕緣性能降低而短路引起的;2001海南省電信公司微波大樓火災是因為電源接線端頭接觸電阻過大引起的;
1.2.2靜電產生火災。
通信設備的運行及工作人員所穿的衣服等都能產生靜電。如果電信機房接地處理不當,產生的靜電負荷不能很快導人大地而是越積越多,一旦形成高電位,就會發生靜電導電現象,產生火花并引燃周圍可燃物發生火災;
1.2.3雷擊等強電侵入導致火災。
雷電放電時所產生的電效應,能產生高達數萬伏、甚至數十萬伏的沖擊電壓,足以燒毀電力線路和設備,引發絕緣擊穿,發生短路引發火災。雷電放電時所產生的熱效應、靜電感應以及電磁感應都可能引發火災;
1.2.4機房內設備長時間通電、設備故障引發火災。
2000年5 月北京電信公司大興縣青云店支局傳輸機房操作終端因長時間運行,致使顯示器自燃引發火災,造成傳輸機房癱瘓,2 萬部固定電話用戶不能正常通信。由于電信機房的用電設備始終處于24 小時的工作狀態,容易疲勞和老化。
1.2.5使用可燃裝修材料,尤其是空調隔熱層和風管隔熱材料容易被人們疏忽;
1.2.6管理不善,雜亂堆放易燃物品或保養維修時引入易燃易爆的清洗溶劑;
提高消防安全意識,實際是為消防節省投資:投資最高技術最先進的消防設施=細心維護盡職盡責+一般性消防設施。
目前在機房消防設計中一般都采用:吊頂內采用點型定溫和點型感煙探測器,因為吊頂內一般都安裝有照明設備,這些設備老化后也極易產生不安全因素;吊頂下也采用點型定溫和點型感煙探測器。
從探測速度上來講,上述方法并不是最理想的,機房內的工況也是非常復雜的,比如說地板內布置纜式線性感溫探測器,因為此類探測器在地板內呈“S”狀布置,探溫點畢竟很稀疏,而地板內的大量纜線著火一般都有大量的煙霧發出,然后才會有足夠溫升去觸動纜式線性感溫探測器,探測速度始終不如人意。有人提出在地板內加裝點型煙感,此種提法只能在地板內不進行通風的前提下提,而且要考慮煙感的安裝位置,數量,要考慮探測器本身的厚度(煙氣向上),而且要考慮煙感的誤報警。最理想的辦法是:探測煙霧采用主動吸氣式感煙探測裝置,并對通風口做重要監視;探溫采用差定溫纜式感溫探測器,除對通訊電纜做“S”狀布置外還應對通風口做同樣重要的布置。對吊頂內和吊頂下采用點型感溫感煙探測器同樣存在與地板內相同的問題,最理想的辦法是:吊頂內和吊頂下都采用吸氣式感煙探測方式,要探測速度更快還可直接將吸氣管深入到機柜內進行探測;吊頂內和吊頂下采用纜式線性探測首先美觀問題就不好處理,所以此時在吊頂內和吊頂下安裝點型定溫比較切合實際,探測速度和確認火災速度是最快的。
從滅火藥劑使用情況來看,及早發現火情后滅火器就可以滅掉,反而節省運行費用,也可將設備的損失降到最低;反之,火災要形成到一定程度才能報警,此時有可能現場人員已經無法控制,滅火藥劑最終肯定會噴掉,但火災對機房設備的損失要大的多。
3.2消防滅火系統的選擇
機房滅火目前采用的滅火劑大多數還是選用七氟丙烷或混合氣體,二氧化碳肯定是不合適,因為溫降會對發熱機器造成損壞。七氟丙烷在機房滅火中可以采用有管網全淹沒滅火形式和無管網全淹沒滅火形式,兩種形式可在具體工程種進行投資比較后定出一種方式,問題不是很大;混合氣體滅火系統在機房滅火中應用也非常多,大多數采用有管網滅火形式,因為同樣大小的機房所用高壓瓶數量七氟丙烷要比混合氣體少一半左右,機房面積一般都很小,混合氣體做無管網形式時無管網箱體數量比較多,再者,啟動電流就是個問題。
3.3滅火劑儲備存裝置數量計算
七氟丙烷滅火系統的規范中有明確規定,防護區內的滅火濃度應校核設計最高環境溫度下的最大滅火濃度,并應符合以下規定:對于經常有人工作的防護區,防護區內最大濃度不應超過表6.0.1中的NOAEL值;對于經常無人工作的防護區,或平時雖有人工作但能保證在系統報警后最長30s延時結束前撤離的防護區,防護區內滅火劑最大濃度不宜超過表6.0.1中的LOAEL值。
但通常好多工程設計中都將此問題忽略不計,原因有二:一,設計者不了解此問題;二,有意避開此問題,以求降低成本。然而此問題從安全角度考慮是非常重要的,本來設置滅火設施是為保證人們的生命安全和減少財產損失,若不考慮此問題相當于用錢引進了一個危險因素,對生命安全卻有了威脅。
通常有管網系統存在生理毒性指標核算,而無管網滅火系統可以不進行生理毒性指標核算,因為無管網本身就是按照實際用量儲存滅火劑的。
3.4防火分割在消防設計過程中應該注意的若干問題
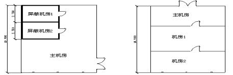
每個氣體滅火系統在設計之初都要先進行滅火分區劃定,滅火分區劃定的結果往往直接影響整個工程的造價,由于每個工程的實際使用工藝流程不盡相同,滅火分區的劃定也五花八門,具體劃分方法以以下實例舉例:
如上圖所述,兩個屏蔽機房被套裝在主機房內。滅火分區劃分出現兩種不同意見,一種意見是將三個房間劃成一個區域采用全淹沒單元獨立系統進行滅火,也就是說三個區域中任何一個發生火災時三個房間同時發出警報并同時噴放藥劑;另外一種意見是將這三個房間當成三個獨立的防火分區,采用一套組合分配全淹沒滅火系統,任何一個房間發生火災時三個房間同時報警,但系統只向發生火災的區域噴放滅火藥劑。前者意見使用藥劑量要大于后者,三個房間實際被當作一個獨立的滅火區對待,基本無太多異議,但投資相對后者要高;后者情況需要我們模擬火災現場后再定,若機房1著火,全部房間報警,人員全部撤離,藥劑只輸送到機房1,若主機房發生火災,全部房間報警,人員全部撤離,藥劑只輸送到主機房,基本無任何危險情況發生,警報區域和范圍依照《火災自動報警系統設計規范》4.2.1.1化為一個報警區域,滅火區域劃分為三個獨立的保護區,并按照氣體保護區要求設置外開門及圍護結構。所以后者方案從使用和投資方面講更合理。
3.5空調通風系統對機房滅火區劃分的影響
如下圖所示,若三個房間從吊頂到地板都采用獨立的空調系統,那么將機房1和機房2劃作一個區域或劃為兩個單獨滅火區都是可行的。但如果采用一臺精密空調為三個房間服務且為“上送風,地板下回風”方式這三個房間就必須劃分成一個滅火區域,藥劑儲備應該是上者的3倍或1.5倍,對工程的投資影響是比較大的。除過滅火劑和噴放管道布置要作為一個保護區考慮外,探測范圍也應該分塊進行探測但還是一個探測區域,警報區域也應該按照一個區域來設置和聯動。
3.6火警信號集中管理的必要性
機房氣體滅火系統一般要與大樓的總火災報警系統(中控)進行通訊,氣體滅火系統的控制器應該向中控提供火警、噴放、故障三種信號,以便中控對此區域有一定的了解。對在高層建筑內的氣體滅火系統必須與中控有火警、噴放、故障三種信號通訊,而中控并不控制氣體滅火系統,就算機房有人24小時值班也要與中控通訊,因為高層建筑消防他是一個整體系統,一旦某個部位發生火災,大樓內相關的警報和應急措施都得啟動,不通訊則此區域對于中控而言將成為一個“盲區”,“盲區”在高層建筑里面是不允許出現的。
有些工程中機房的探測器本身就是利用中控的總線探測器,利用控制模塊向滅火控制器傳輸報警狀態信號。這樣只能說是報警信號直接通訊,但機房發生火災后到底啟動沒啟動滅火設施中控就不得而知,所以還要進行噴放和故障狀態通訊。
3.7手動啟動按鈕的唯一性
在氣體滅火系統的設計中經常會碰到一個保護區兩個或兩個以上的出口,一般在出口都會設置手動啟動和停止按鈕,然而這種方式從便捷層面上講應該是反應速度最快的方式,但在火災發生時有可能出現判斷不通一的時候,例如以下情況很有可能就會耽誤滅火時間,造成更大的設備損壞:
如右圖,北門出口的人認為火災已經無法控制而按下了啟動按鈕,然后匆忙離開了現場,而南門出口的人認為火勢并不大,用滅火器應該可以撲滅,南門人按下了停止按鈕,系統當然在延時噴放階段停了下來。南門人經過一番努力后發現火勢自己無法控制,然后在南門位置的按鈕上連續兩次按下啟動按鈕后,氣體滅火系統啟動并即刻滅掉了火災。從北門啟動按鈕被按下到南門二次啟動滅火系統間隔時間共2分鐘,火災狀況下每一秒鐘都很珍貴?;鹗潜粶绲衾玻紵龝r間卻被延長了2分鐘。且不說設備損壞程度, 2分鐘以前的火災威脅和2分鐘之后的火災威脅出入很大,就火災危險性而言就有天壤之別。這就是嚴重的耽誤滅火事機并分化了人員力量。
若只在北門布置“啟動/停止按鈕”,那么這兩個工作人員肯定會向同一個出口會合,即“北門”。此時兩個人的判斷會統一起來:一、火勢無法控制,立即啟動滅火系統;二、火勢應該可以控制,兩把滅火器同時工作。
所以對滅火區域的手動啟動、停止按鈕的布置強調唯一性是有必要得,安裝唯一啟動裝置也是切實可行的。
3.8警報裝置的安裝位置和數量
警報裝置一般用警鈴和聲光報警器,一些機房氣體滅火工程中將警鈴和聲光報警器安裝在出口外,顯然是警告外面的人員“機房內發生火災”,而機房里面的人卻不被警告,實際上防氣指示燈的警告作用在重復設置。最理想的辦法是:在機房內同時設置警鈴和聲光報警器,其中警鈴是用來告知機房區域有火情,即兩種探測器中一種已經動作,而聲光報警器響時告知火災已經被系統確認并且處在延時噴放階段。在出口外并聯一個警鈴,里外同時響,并且在門外設置“放氣指示燈”。這樣一來即警告了機房內的人又警告了機房外的人,使得火情發展進度被準確認知,有利于整個機房的滅火和人員疏散工作。
警報裝置除了警鈴和聲光報警器外還有一個“放氣指示燈”,“放氣指示”在的一些廠家是從延時開始就常亮,一些廠家是確認氣體噴射時才亮,此兩種都沒有明確“延時噴放”和“已經噴放”的狀態,最合理的應該是“延時噴放”階段閃亮,“已經噴放”后常亮。
4.1.1國家現行有關規范、技術規范
《建筑設計防火規范》GBJ16-87(2001年版)
《火災自動報警系統設計規范》GB50116-98
《火災自動報警系統施工及驗收規范》GB50166-92
《氣體滅火系統施工及驗收規范》GB50263-2007
《建筑安裝工程質量檢驗評定統一標準》GB50159-92
《建筑施工高處作業安全技術規范》JGJ80-91
《建筑電氣工程施工質量驗收規范》GB50303-2002
《建筑施工安全檢查標準》JGJ59-99
《建筑機械使用安全技術規程》JGJ33-86
4.1.2有關的法律、法規及相關規定文件等。
4.2編制原則
4.2.1認真執行工程建設程序的原則
4.2.2項目排隊、保證重點、統籌安排、保證施工進度的原則。
4.2.3遵循施工工藝及技術規律,合理安排施工程序和施工順序的原則。
4.2.4采用平行流水、立體交叉作業的施工方式,運用網絡計劃跟蹤技術進行動態管理,保證有節奏、均衡、連續施工的原則。
4.2.5科學地安排施工力量,保證各施工期的勞動力人數和工程施工的連續性。
4.2.6節約、合理地安排臨設,合理儲備物資,減少物資運輸,科學的布置施工平面圖。
我公司把“讓顧客滿意,建精品工程”作為本工程的施工總目標,嚴格遵守雙方簽訂的施工合同,按照設計圖紙要求,嚴格組織施工,讓建設單位放心,以確保總目標的實現。
5.2施工技術方案
5.2.1施工技術措施
(1)、設備(進場)驗收
進入施工現場的管材、產品要與設計規格型號、數量相符,具有合格證、使用說明,經檢查驗收合格后方可進場。材料進場后,要作防塵、防潮、防碰、防砸、防壓等防護措施,妥善保管。
(2)施工準備
①氣體滅火系統施工前應具備的技術資料:
§設計施工圖,設計說明書,系統及其主要組件的使用、維護說明書。
(3)探測器的安裝
探測器安裝應在地面裝修結束后進行,探測器的底座應固定可靠,其連接導線必需可靠壓接或焊接,當采用焊接時,不得使用腐蝕性的助焊劑,外接導線應有0.15米的余量;探測器周圍0.5米內,不應有遮擋物;探測器至空調送風口的水平距離不應小于1.5米,至多孔送風孔口的水平距離不應小于0.5米,安裝完畢后的探測器應用探測器保護罩進行保護,待施工現場清場后,調試時方可取下保護罩。
(4)報警按鈕的安裝
報警按鈕應安裝在墻上距地面高度1.5米處,且應安裝牢固不得傾斜;手動報警按鈕外接導線應留有0.1米的余量,且在端部應有明顯標志。
5.2.1.1聯動調試
嚴格按照施工及驗收規范的要求進行聯動測試,對氣體滅火系統的聯動方式自動與手動等都應進行一一測試,合格寫出調試報告,系統進入正常運行狀態。
5.2.2 消防工程整體調試方案
由項目技術總負責人編制整體調試方案,提交業主及監理方認可后,組織各相關施工單位進行消防工程的整體調試。
按設計要求,對消防設備的各項聯動功能逐一進行測試。
(1)火災探測器按實際數量的10%進行試驗。
(2)氣體滅火系統的功能測試:
①人工啟動和緊急切斷試驗3次;
②與固定滅火設備聯動控制的其他設備試驗3次;
5.3施工準備工作計劃
主要勞動力、材料、施工及檢測設備、儀器安排及進場計劃
5.3.1施工準備工作計劃
主要是技術準備,包括熟悉和審查施工圖紙,地質資料調查,編制施工圖預算和施工預算,編制施工組織設計。物資準備包括建筑材料準備,施工機具的準備并制定各種物資需要量計劃及勞動組織,現場準備和部分外協工作。
5.3.2施工機具的進出場計劃
在施工準備期間,配電箱、電源盤等小型機具進駐現場,管路預埋檢查清理完后,萬用表、接地電阻測試儀、檢測工具箱等進入現場,小型機具由項目部根據施工進度需要進行組織協調。
5.3.3原材料進出場計劃
本工程進場后,電線、金屬軟管等材料進入現場;絕緣測試合格后,施工現場清理干凈后,探測器、報警按鈕、等陸續進入現場,氣溶膠滅火裝置最后進入施工現場。
5.3.4勞動力計劃
本工程在保證工期、保證質量的前提下,計劃用技術素質高、能在各個施工期間保證正常施工的我公司專業班組及配屬的勞務施工隊伍。
5.4初步交貨進度計劃
施工順序與施工配合、安裝施工進度計劃及保證措施
5.5工程質量保證措施
按照本工程招標文件的要求及我公司的實力,我們確保該工程達到優良標準,為保證本工程質量目標的實現,特制定如下措施。
質量保證體系
為保證工程質量,建立嚴格的質量管理體系,公司設立工程質量檢查小組,定期和不定期到工地現場進行質量檢查。項目部成立質量領導小組,項目技術負責人任組長,各工種負責人任成員,配備專職質檢員,實行質量層層負責制,做到領導有布置,操作前有交代,操作中有檢查,每道工序有自檢、互檢、驗收評定,形成齊抓共管、嚴格把關,一著不讓這樣一管理網絡。
6.1.1 技術參數
S型氣溶膠浸漬時間:≥10min
滅火時間:≤30s
噴射時間:≤120s,噴射滯后時間 :≤5s
工作環境溫度范圍:-20℃~55℃
工作環境相對濕度:不大于95%
啟動電流:1A,啟動電壓:DC 24V
最小啟動電流:250mA 5ms
最大安全電流:150mA 5min
多臺聯動方式:串聯方式
滅火劑存儲年限:7年
6.1.2.技術要求
a.啟動方式;自動、手動(緊急啟停按鈕)。
b.產品通過國家消防安全強制檢測中心檢測。、
c.制造商不帶氣體滅火控制器及報警裝置、煙感、溫感。
6.1.3 熱氣溶膠滅火系統裝置主要產品性能
a.滅火裝置啟動滅火時,產生大量氣溶膠(煙霧),抑制火災的燃燒反應達到滅火的目的;
b.滅火裝置啟動后產生的氣溶膠(煙霧)無毒、無公害、無腐蝕、不損耗大氣臭氧層;
c.滅火裝置與火災報警控制器組網可實現高速、高效、全方面滅火,具有自動探測、自動報警、自動啟動和手動啟動的綜合功能,對無人條件下的火災和消防人員難以達到部位火災的滅火具有獨特的優勢;
d.可多具聯網,電線連接,保護空間不受線路長短影響;
e.系統無管網、無壓力容器驅動裝置、閥門、管道等,可節約使用面積及工程費用;
f.滅火裝置是固體存放無泄漏,在常壓下工作,安全可靠、儲運方便。
6.1.3 熱氣溶膠滅火系統應用范圍
1.可應用于撲救下列形式火災:
a: 變(配)電站(房)、電氣控制室、發電機房、電纜夾層、電纜井、電纜溝、電子計算機房、通訊機房等場所的火災;
b: 生產、使用或貯存柴油(—35號柴油除外)、重油、變壓器油、潤滑油、動、植物油等各種丙類可燃燒液體的場所的火災;
c: 生產、使用或貯存可燃燒固體物質的場所的可燃燒固體物質的表面火災。
6.1.4 使用維護說明以及設備外形圖
1使用、操作注意事項:
a、QYS滅火裝置安裝使用前應仔細閱讀使用說明書;
b、每臺QYS滅火裝置附使用說明書一份,產品合格證一張;
c、滅火裝置的安裝、驗收和維護由于公司培訓的專業人員或當地供應商的專業人員進行;裝置在安裝工程全面驗收合格前,嚴禁將任何外接組合柜線路與本滅火裝置連接,驗收合格后,在未連接本滅火裝置啟動信號①、②或者組合柜下柜箱的①、③之前必須確保無啟動信號的外線連接該裝置,啟動①、②或者組合柜下柜箱的①、③信號外線輸出應符合負載小于150mA安全電流后方可連接;
d、安裝后得隨意移動,嚴禁拆散;
e、發現火災、人員立即撤離現場,撤離時應關好門窗,形成相對封閉空間,保證滅火效果;在實施完氣溶膠撲滅火災后,應對防護區做好通風換氣工作,并及時做好現場清理、設備清理、恢復等工作,保證設備正常運行;
f、裝置有效期7年(見產品銘牌)。超過有效期后,由使用單位與廠家或供應商聯系更換。
6.1.5 熱氣溶膠滅火系統裝置安裝
a. 滅火裝置的安裝、驗收和維護由于公司培訓的專業人員或當地消防工程公司進行。
b. 滅火裝置防護區的工程設計、安裝和驗收應符合國標50370-2005熱氣溶膠預制滅火系統設計規范要求。當滅火裝置和火災報警系統及其他消防控制系統聯網時,還應符合GB50166《火災自動報警系統施工及驗收規范》的規定。
c. 滅火裝置安裝的正前方0.5米內不允許有任何障礙,其安裝不受位置高低的影響,就地擺放時,宜靠墻壁。
d. 滅火裝置不宜安裝下列位置:
①:臨近明水,火源處;
②:臨近進風,排風口,門窗及其他開口處;
③:容易被雨淋,水澆,水淹處;
④:疏散通道;
⑤:經常受振動、沖擊、有腐蝕處。
e.地下防護和無窗或固定窗戶的底墑防護區,應有機械排風裝置。
f. 防護區不宜開口,如必須開口時,應設置自動關閉裝置。有困難時,應考慮開口流失補償,加大滅火劑用量給予補償。
g. 同一防護區的滅火裝置應同時啟動。
i.安裝前,應由專業安裝維護人員檢查火災探測器、火災自動報警控制器、線路等是否完好;并將火災探測器與火災自動報警接好,模擬火災探測器所需煙的濃度和溫度,測試負載輸出、報警等正常后方能安裝。(注意:安裝工程全面驗收合格后,在未連接本滅火裝置啟動信號①、②或者組合柜下柜箱的①、③之前必須確保無啟動信號的外線連接該裝置啟動①、②或者組合柜下柜箱的①、③信號線輸出應符合負載小于150mA安全電流后方可連接)
j.滅火裝置接線圖:
6.1.6 熱氣溶膠滅火系統操作說明
在每個防區內,火災探測由若干個煙感、溫感探測器完成。當防護區火災自動報警控制器收到煙感、溫感任何一種火災信號后,經火災自動報警控制CPU運算判斷后,首先發出火災預警信號,另一方面輸出即時啟動信號關閉空調或自動放下防火卷簾;同時輸出延時30S的啟動信號自動啟動滅火裝置進行滅火。啟動后,滅火裝置將釋放信號反饋給報警控制器,點亮釋放顯示燈,提示人們切勿進入火災防區。
手動控制盒,供緊急情況下,啟動或停止滅火裝置時使用,無論火災自動報警控制器處在自動或手動方式,按此開頭(擊碎玻璃按下)即可緊急啟動滅火裝置。
基礎管接線路圖和電儀控制原理圖
接線路圖和控制原理圖
y :感煙探測器 w :感溫探測器
說明:滅火系統各組成部分及設備的不帶電外殼,應可靠接地,并應考慮防雷擊感應電流干擾滅火系統的措施。如溫感、煙感探測器接線,滅火裝置的啟動線,采用雙絞線,或雙芯金屬屏蔽線的。
6.2 氣體滅火控制裝置
我公司對本工程確定的質量目標為:確保工程達到優良標準。
7.1報價方案1(氣溶膠氣體滅火設備)
7.2 報價方案2(七氯丙烷設備)
機房現在存在問題;
第一、服務器機柜距離燈太近,消防規定應該在50cm以上。
第二、機房現用的是二氧化碳滅火器,不符合消防規定要求。
第三、煙感距離機柜太近,在有條件下再增加一個溫感(現有為煙感)。
方案一;
優點:成本費用低,安裝簡單。
缺點:不能靈活獨立使用,與現在噴淋系統存在沖突,可擴展性低,不能安裝氣體滅火附屬設備。
方案二;
優點:獨立安裝,報警靈敏,及時啟動氣體滅火系統,起到安全滅火目的,可增容性強。
缺點:成本費用高,需要三個工作日完成。
一、滅火劑種類選擇
在經常有人員工作的防護區,選用氣溶膠滅火系統。
氣溶膠滅火劑技術指標:
1、 《氣體滅火系統設計規范》GB50370-2005
2、 《柜式氣體滅火裝置》GB16670-2006
3、 《建筑設計防火規范》 GBJ16-87
4、 《潔凈氣體滅火系統標準》NFPA2001
5、 《氣體滅火系統施工及驗收規范》GB50263-97
6、 《火災自動報警系統設計規范》 GB50116-98
7、 客戶提供的有關圖紙和技術資料。
3.2 相對濕度:5%~95%
如值班人員先于火災探測系統發現火情,當用手提式滅火器或其它移動式滅火設備無法撲滅火災時,可直接手動啟動來滅火。如發現是系統誤動作,或確有火災發生但僅使用手提式滅火器和其它移動式滅火設備即可撲滅火災,可按下設在防護區域門外的緊急止噴按鈕,可以使系統暫時停止釋放藥劑。如需繼續開啟氣體滅火系統,則只需松開緊急停止開關即可。
4.2.1 自動控制方式
當防護區長期無人值班或很少有人出入時,應將火災報警控制器上的控制方式選擇鍵置于“自動”位置,同時將防護區門外的手動自動轉換開關置于“自動”狀態。此時控制系統處于自動工作狀態,當防護區發生火災時,氣體滅火系統自動完成防護區內的火災報測、報警聯動控制及噴氣滅火整個過程。防護區內的單一探測回路探測火災信號后,控制盤啟動設在該防護區內的警鈴。同時向FAS系統提供火災預報警信號。同一防護區內的兩個回路都探測到火災信號后,控制盤啟動設在該防護區域內外的聲光報警器,經過30秒延時后,火災報警控制器輸出24V直流電,啟動滅火系統。滅火劑經噴射短管和噴頭釋放到防護區,控制面板噴放指示燈亮,同時報警控制器接收壓力訊號器反饋信號,開啟防護區內門燈,避免人員進入,直至確認火災已經撲滅。
設置于防護區門外的手動自動轉換開關應具有較強的抗沖擊能力,且應采取有效防止誤操作的措施。在系統處于自動工作狀態下,當報警系統誤報警進入延時時間時,手動自動轉換開關應能停止系統噴放滅火藥劑。
4.2.2 手動控制方式
當防護區經常有人工作時且有人值班的情況下,為了防止系統誤動作,應將火災報警控制器上的控制方式選擇鍵置于“手動”位置,并將防護區門外的手動自動轉換開關置于“手動”狀態。此時系統處于手動控制狀態。當防護區發生火災時,火災探測器將探測到的火災信號輸送給控制器,控制器立即發出聲、光報警信號,同時發出聯動信號,但不會輸出啟動滅火系統信號,此時需要經值班人員確認火災后,按下控制器上相對應防護區的緊急啟動按鈕,即可按預先設定的程序啟動滅火系統,釋放七氟丙烷氣體進行滅火。這種手動控制,實際上還是通過電氣方式的手動控制。手動啟動后,系統將不經過延時而被直接啟動,釋放滅火劑。
4.2.3 應急機械手動控制方式
4.2.4 在發現火災后,系統自動、手動兩種啟動方式均失靈的情況下,可直接手動啟動儲氣瓶內實行應急機械手動控制方式,人為開啟啟動裝置,進行滅火。
4.2.5 自動滅火系統的控制程序
JTY-GD-G3型點型光電感煙火災探測器采用無極性信號二總線技術,可與各類火災報警控制器配合使用。本探測器主要具有以下特點:
(1)內置帶A/D轉換的八位單片計算機,具備強大的分析、判斷能力,通過在探測器內部固化的運算程序,可自動完成對外界環境參數變化的補償及火警、故障的判斷,存儲環境參數變化的特征曲線,極大提高了整個系統探測火災的實時性、準確性;
(2)采用電子編碼方式,現場編碼簡單、方便;
(3)采用指示燈閃爍的方式提示其正常工作狀態,可在現場觀察其運行狀況;
(4)底部采用密封方式,可有效防水、防塵、防止惡劣的應用環境對探測器造成的損壞;
(5)專利產品,專利號為ZL99311724.4。
主要技術指標如下:
(1)工作電壓:總線24V
(2)監視電流≤0.6mA
(3)報警電流≤1.8mA
(4)報警確認燈:紅色,巡檢時閃爍,報警時常亮
(5)使用環境:
溫度:-10℃~+55℃
相對濕度≤95%,不結露
(6)編碼方式:十進制電子編碼
(7)外殼防護等級:IP23
(8)外形尺寸:
直徑:100mm,高:56mm(帶底座)
JTY-GD-G3型點型光電感煙火災探測器符合國家標準GB 4715-2005《點型感煙火災探測器》。
此產品已獲得:CCC認證、檢驗報告、英國LPCB認證、美國UL認證、歐盟CE認證、中國船級社發放的船用產品型式認可證書。
● JTW-ZCD-G3N型點型差定溫火災探測
JTW-ZCD-G3N型點型感溫火災探測器采用無極性信號二總線技術,可與本公司生產的各類火災報警控制器的報警總線以任意方式并接,特別適用于發生火災時有劇烈溫升的場所,與感煙探測器配合使用更能可靠探測火災,減少損失。本探測器具有以下特點:
(1)結構新穎、外形美觀、性能穩定可靠;
(2)采用帶A/D轉換的單片機,實時采樣處理數據、并能保存14個歷史數據,曲線顯示跟蹤現場情況;
(3)地址編碼由電子編碼器直接寫入,工程調試簡便可靠;
(4)專利產品,專利號為ZL99311722.8。
主要技術指標如下:
(1)探測器類別:A1R
(2)工作電壓:總線24V
(3)監視電流≤0.6mA
(4)報警電流≤1.8mA
(5)報警確認燈:紅色,巡檢時閃爍,報警時常亮
(6)使用環境:
溫度:-10℃~+50℃
相對濕度≤95%,不結露
(7)編碼方式:十進制電子編碼
(8)外殼防護等級:IP33
(9)外形尺寸:
直徑:100mm,高:58mm(帶底座)
JTW-ZCD-G3N型點型差定溫火災探測器符合國家標準GB 4716-2005《點型感溫火災探測器》。
此產品已獲得:CCC認證、檢驗報告、英國LPCB認證、美國UL認證、歐盟CE認證、中國船級社發放的船用產品型式認可證書。
● GST-LD-8301型輸入/輸出模塊
GST-LD-8301型輸入/輸出模塊用于現場各種一次動作并有動作信號輸出的被動型設備如:排煙閥、送風閥、防火閥等接入到控制總線上。
本模塊采用電子編碼器進行編碼,模塊內有一對常開、常閉觸點。模塊具有直流24V電壓輸出,用于與繼電器觸點接成有源輸出,滿足現場的不同需求。另外模塊還設有開關信號輸入端,用來和現場設備的開關觸點連接,以便對現場設備是否動作進行確認。本模塊具有輸入、輸出具有檢線功能。應當注意的是,不應將模塊觸點直接接入交流控制回路,以防強交流干擾信號損壞模塊或控制設備。
主要技術指標如下:
(1)工作電壓:
總線電壓:總線24V
電源電壓:DC24V
(2)監視電流:
總線電流≤1mA
電源電流≤5mA
(3)動作電流:
總線電流≤3mA
電源電流≤20mA
(4)線制:與控制器采用無極性信號二總線連接,與DC24V電源采用無極性電源二總線連接
(5)無源輸出觸點容量:DC24V/2A,正常時觸點阻值為100kΩ,啟動時閉合,適用于12V~48V直流或交流
(6)有源輸出容量:DC24V/1A
(7)輸出控制方式:脈沖、電平(繼電器常開觸點輸出或有源輸出,脈沖啟動時繼電器吸合時間為10s)
(8)出廠設置:常開檢線輸入、有源輸出方式
(9)使用環境:
溫度:-10℃~+55℃
相對濕度≤95%,不結露
(10)外殼防護等級:IP30
(11)外形尺寸:
86mm×86mm×43mm(帶底殼)
GST-LD-8301型輸入/輸出模塊符合國家標準GB 16806-2006《消防聯動控制系統》。
此產品已獲得:CCC認證、檢驗報告、英國LPCB認證、歐盟CE認證。
● HX-100B火災聲光警報器
火災聲光警報器是一種安裝在現場的聲光報警設備,當現場發生火災并確認后,安裝在現場的火災聲光警報器可由消防控制中心的火災報警控制器啟動,發出強烈的聲光報警信號,以達到提醒現場人員注意的目的。
HX-100B型火災聲光警報器為編碼型警報器,可直接接入火災報警控制器的信號二總線(需由電源系統提供二根DC24V電源線)。
主要技術指標如下:
(1)工作電壓:
信號總線電壓:24V 允許范圍:16V~28V
電源總線電壓:DC24V 允許范圍:DC20V~DC28V
(2)工作電流:
總線監視電流≤0.8mA 總線啟動電流≤6.0mA
電源監視電流≤10mA 電源動作電流≤160mA
(3)線制:四線制,與控制器采用無極性信號二總線連接,與電源線采用無極性二線制連接
(4)聲壓級≥85dB(正前方3m水平處(A計權))
(5)使用環境:
溫度:-10℃~+50℃
相對濕度≤95%,不結露
(6)外殼防護等級:IP43
(7)外形尺寸:
90mm×144mm×57mm(帶底殼)
HX-100B火災聲光警報器符合國家標準GA385-2002《火災聲和/或光警報器》。
此產品已獲得:國家消防電子產品質量監督檢驗中心簽發的型式檢驗報告、中國船級社發放的船用產品型式認可證書。
GST-QKP01氣體滅火控制器 /火災報警控制器(簡稱為GST-QKP01)是為適應工程設計的需要而開發的。GST-QKP01具有火災探測報警和氣體滅火控制雙重功能,可配接各種編碼火災探測器、手動報警按鈕、緊急啟/停按鈕、聲光警報器、氣體噴灑指示燈、手自動轉換開關以及輸出模塊,實現1個防火區的火災報警和氣體滅火控制。
GST-QKP01滿足GB 4717-2005 《火災報警控制器》和GB 16806-2006《消防聯動控制器》中有關氣體滅火控制器的要求,為室內使用設備。GST-QKP01具有以下特點:
(1)配置靈活、可靠性高
(2)功能強、控制方式靈活
(3)窗口化、漢字菜單式顯示界面
(4)模塊式開關電源
GST-QKP01并且具有火災探測及報警功能;能控制實現氣體滅火設備的啟動噴灑;GST-QKP01收到啟動控制信號后能啟動現場的區域訊響器報警、自動顯示延時且指示延時時間;并聯動啟動輸出模塊實現關閉門窗、防火閥和停止空調等功能;延時啟動的延時時間在0~30秒連續可調;具有停動功能;具有手自動轉換功能;自身帶有備電,在主電缺失時可自動進入備電運行狀態,能給備電充電并有備電保護功能;具有信息記錄、查詢功能,可保存最后的999條記錄。
主要技術指標如下:
(1)工作電壓:交流AC220V 50/60Hz ,允許電壓變化范圍 AC187V~AC242V;
(2)功耗:監視狀態功耗≤20W;最大功耗≤120W;
(3)備用電源:2個DC12V/7Ah密封鉛電池;
(4)氣體噴灑輸出:DC24V/2A,脈沖方式/持續方式,可調;
(5)輔助24V電源輸出:最大0.6A;
(6)電池充電電流:最大300mA;
(7)液晶屏規格:128×64點,可同屏顯示32個漢字信息;
(8)容量
可帶1個區的氣體滅火設備,實現對1個防護區的保護。其中所帶設備及數量如下:
電磁閥:1個,額定電壓DC24V,最大電流2A;
壓力開關:1個,常開觸點,動作時閉合;
區域訊響器:1~5個,編碼地址范圍1~10;
氣體噴灑指示燈:1~5個,編碼地址范圍11~20;
緊急啟/停按鈕和手自動轉換開關:共1~10個,編碼地址范圍21~30;
輸出模塊:1~3個,編碼地址范圍31~40;
點型感煙探測器:1~10個,編碼地址范圍41~50;
其它探測器(如感溫、火焰等):1~10個,編碼地址范圍51~60;
手動報警按鈕:1~10個,編碼地址范圍61~70;
聲光警報器:1~2個,非編碼。
(9)線制
(10)使用環境
工作溫度:-10℃~50℃
相對濕度≤95%,不凝露
(11)外形尺寸:長413mm×寬330mm×厚97mm。
(12)壁掛安裝于防護區門口,支持上進線方式。
GST-QKP01型氣體滅火控制器 /火災報警控制器符合國家標準GB 4717-2005《火災報警控制器》、GB 16806-2006《消防聯動控制系統》。
此產品已獲得:CCC認證、檢驗報告。
● GST-LD-8317型氣體噴灑指示燈
GST-LD-8317氣體噴灑指示燈是氣體滅火系統的配套產品,通常安裝在被保護場所的入口處。當氣體噴灑后,氣體滅火控制器(以下簡稱控制器)將啟動噴灑燈發出燈光指示,提醒人員注意并采取相應的措施。本噴灑燈為編碼型,可與公司氣體滅火系統控制器配套使用。
氣體噴灑指示燈與控制器進行通信采用數字信號,工作穩定可靠,對電磁干擾有良好的抑制能力;地址碼為電子編碼,可由電子編碼器事先寫入,也可由控制器直接改寫,工程調試簡便。
主要技術指標如下:
(1)工作電壓:
信號總線電壓:24V 允許范圍:16V~28V
電源總線電壓:DC24V 允許范圍:DC20V~DC28V
(2)工作電流:
信號總線監視電流≤3mA 電源總線監視電流≤2mA
信號總線動作電流≤4mA 電源總線動作電流≤25mA
(3)閃光頻率:每分鐘閃亮60±6次
(4)編碼方式:電子編碼方式,編碼范圍可在11~20之間任意設定
(5)線制:與氣體滅火控制器采用四線連接。其中兩線接總線,無極性;
另外兩線接電源DC24V,無極性
(6)使用環境:
溫 度:-10℃~+50℃
相對濕度≤95%,不凝露
(7)外形尺寸:315.5mm×113.5mm×39.4mm(帶底
● GST-LD-8318型緊急啟停按鈕
GST-LD-8318緊急啟/停按鈕,用于控制氣體滅火系統的啟動及停動。通常安裝在現場,當被保護的區域內發生火災時,按下“按下噴灑”按鍵,即可向氣體滅火控制器(以下簡稱控制器)發出氣體噴灑請求信號。氣體滅火控制器發出氣體噴灑命令,經延時,啟動氣體噴灑電磁閥。在延時期間,若現場人員確認無火災發生,可立即按下“停止”按鍵,終止啟動。
按鈕為編碼方式,啟動和停動共占一個編碼點;按鈕可提供輸出無源常開觸點信號,可直接控制聲光警報器等設備。
主要技術指標如下:
(1)工作電壓:總線24V,允許范圍:16V~28V
(2)監視電流:≤0.8mA,報警電流≤10mA
(3)編碼方式:電子編碼方式,編碼范圍可在11~20之間任意設定
(4)常開輸出觸點:額定值DC60V、0.1A,接觸電阻≤100mW
(5)啟動方式:擊碎玻璃罩后,按下“按下噴灑”按鍵
(6)啟動零件類型:重復使用型
(7)“按下噴灑”按鍵復位方式:用專用鑰匙復位
(8)指示燈:
“按下噴灑”按鍵:紅色,按下時常亮
“停止”按鍵:綠色,按下時常亮
(9)線 制:與氣體滅火控制器采用無極性兩線制連接
(10)外殼防護等級:IP33
(11)使用環境:
溫 度:-10℃~+55℃
相對濕度≤95%,不凝露
(12)外形尺寸:112(長)mm´133(高)mm´65mm(厚)
● GST-LD-8316手自動轉換開關
GST-LD-8316手自動轉換開關(以下簡稱轉換開關),用于控制氣體滅火系統在手動狀態和自動狀態之間的轉換,同時還有緊急啟動和停動功能。通常安裝在保護區門口便于操作的位置,當有人員進入被保護區域時,可通過轉換開關將系統置于手動模式,系統將不進行聯動;當無人員在被保護區域時,可通過轉換開關將系統置于自動模式,以便火災報警系統能自動聯動氣體滅火。
當被保護的區域內發生火災時,按下“按下噴灑”按鍵,即可向氣體滅火控制器發出氣體噴灑請求信號,氣體滅火控制器按預設邏輯開始啟動聲光報警、關閉空調風閥等,經延時后,啟動氣體噴灑電磁閥。在延時期間,若現場人員確認無火災發生或現場有人沒有撤離,可立即按下“停止”按鍵,中止延時。
轉換開關為編碼方式,占一個編碼點;轉換開關同時具有系統模式轉換功能和緊急啟、停功能。
主要技術指標如下:
(1)工作電壓:總線24V,允許范圍:DC16V~DC28V
(2)工作電流:監視電流 ≤3mA 報警電流≤6mA
(3)編碼方式:電子編碼方式,編碼范圍可在11~20之間任意設定
(4)啟動方式:人工按下“按下噴灑”按鍵
(5)啟動零件類型:重復使用型
(6)復位方式:用專用鑰匙復位
(7)指示燈:
延時:紅色,系統處于延時啟動階段時點亮;
啟動:紅色,控制器啟動存放滅火氣體的鋼瓶的電磁閥時點亮;
噴灑:紅色,滅火氣體開始噴灑時點亮;
自動:黃色,系統處于自動模式時點亮;
手動:綠色,系統處于手動模式時點亮。
(8)線 制:與氣體滅火控制器采用無極性兩線制連接
(9)使用環境:
溫 度:-10℃~+55℃
● GST-DY-200型電源箱
GST-DY-200型電源箱是一種DC24V大容量電源輸出設備,在火災報警控制系統中,可作為聯動控制系統的電源使用,為聯動控制模塊及被控設備供電。電源箱以交流220V作為主電源,同時內置DC24V/7Ah密封鉛電池作為備用電源,采用開關電源穩壓電路及備電浮充電路,具有輸出過流自動保護、主備電切換和完善的備電自動充電及備電過放電保護功能。同時,本智能電源箱可對主、備電及電源輸出狀態進行監控,可報主、備電故障、輸出故障,還具有輸出電壓、輸出電流的顯示功能,可直觀地觀察電源箱的工作狀態。
主要技術指標如下:
(1)額定輸出容量:DC24V、6A
(2)使用環境:
溫度:0℃~+40℃
相對濕度≤95%,不結露
(3)電源:主電為交流220V-15%,內裝DC24V 7Ah密封鉛電池作備電
(4)外形尺寸:
310mm×400mm×115mm
JTY-GF-GST9711(Ex)型點型光電感煙火災探測器
JTY-GF-GST9711(Ex)點型光電感煙火災探測器利用紅外散射技術,采用進口光電器件,提高了傳感器的可靠性、穩定性和一致性,并采用獨特的迷宮設計,防蟲、防塵、抗外界光線干擾性能良好。產品結構新穎、外型美觀、性能穩定可靠、抗潮濕性強,并具有良好的抗化學腐蝕性。本探測器防爆類型為本質安全型,防爆標志為ExibIICT6,適用于石油、化工等行業具有防爆要求的1區及2區使用。本探測器為非編碼型,與GST-LD-8332模塊箱配合使用,可接入本公司生產的各類火災報警控制器,完成對探測器信號的處理。
本探測器是我公司推出的最新產品,同時還具有以下特點:
(1)專業造型設計,超薄型;
(2)超大指示燈指示,360度范圍可見;
(3)具有溢水孔設計,防止積水滲漏;
(4)迷宮設計獨特,抗灰塵污染性強;
(5)自診斷、自補償、自學習;
(6)迷宮為專利產品,專利號為:ZL03100624.8。
主要技術指標如下:
(1)工作電壓:DC16V~DC28V
(2)靜態電流≤60μA (注:靜態時探測器可工作在DC16V~DC28V電壓范圍內)
(3)報警電流≤30mA
(4)安全柵參數:U0=28V,I0=93mA
(5)防爆標志:ExibIICT6
(6)報警確認燈:紅色,正常時閃亮,報警時常亮
(7)使用環境:
溫度:-10℃~+55℃
相對濕度≤95%,不結露
大氣壓力:86kPa~106kPa
(8)外殼防護等級:IP32
(9)探測器尺寸:
直徑:100mm ,高:54.5mm(帶底座)
JTW-ZOF-GST9712(Ex)型點型感溫火災探測器
JTW-ZOF-GST9712(Ex)型點型感溫火災探測器是利用熱敏元件對溫度的敏感性來檢測環境溫度,內置單片機,固化高可靠火災判斷程序,并采用特殊工藝進行處理,工作穩定可靠,且具有良好的抗化學腐蝕性。適用于石油、化工等行業具有防爆要求的1區及2區使用。本探測器為非編碼型,與GST-LD-8332模塊箱配合使用,可以直接接入各類火災報警控制器,完成探測器的信號處理。
本探測器是我公司推出的最新產品,同時還具有以下特點:
(1)專業造型設計,超薄型;
(2)超大指示燈指示,360度范圍可見;
(3)具有溢水孔設計,防止積水滲漏。
主要技術指標如下:
(1)探測器類別:A1R
(2)工作電壓:DC16V~DC28V
(3)監視電流≤60µA (注:靜態時探測器可工作在DC16V~DC28V電壓范圍內)
(4)報警電流≤30mA
(5)安全柵參數:U0=28V,I0=93mA
(6)防爆標志:ExibIICT6
(7)報警確認燈:紅色,正常時閃亮,報警時常亮
(8)使用環境:
溫度:-10℃~+50℃
相對濕度≤95%,不結露
大氣壓力:86kPa~106kPa
(9)外殼防護等級:IP33
(10)探測器尺寸:
直徑:100mm ,高:51.3mm(帶底座)
GST-LD-8331型模塊箱
GST-LD-8331型模塊箱由GST-LD-8303模塊、GST-AS-300安全柵和模塊箱外殼組成,可與J-SAF-GST9213(Ex)消火栓按鈕配接,組成本質安全型防爆系統,一旦發生火災,現場人員按下消火栓報警按鈕,模塊箱將報警信號通過總線傳入控制器,控制器會顯示出該編碼地址的報警信號。當模塊箱出現故障時,控制器會顯示出該編碼地址的故障信號。模塊箱具有檢線功能,當與消火栓按鈕的連接線出現短路、斷路時,模塊箱會向控制器報故障。模塊箱采用電子編碼方式,編碼范圍在1~242之間任意設定,可通過我公司生產的GST-BMQ-2型電子編碼器進行現場編碼。
模塊箱應安裝在安全區域。
主要技術指標如下:
(1)工作電壓:
總線電壓:總線24V
電源電壓:DC24V
(2)監視電流:
總線電流≤0.8mA
電源電流≤10mA
(3)報警電流:
總線電流≤3.4mA
電源電流≤60mA
(4)連接設備類型:J-SAF-GST9213(Ex)消火栓按鈕
(5)連接設備容量:最多10只
(6)安全柵型號:GST-AS-300
(7)安全柵參數:U0=28V,I0=93mA,L0≤4.0mH,C0≤0.083mF
(8)外殼防護等級:IP55
(9)使用環境:
溫度:-10℃~+55℃
相對濕度≤95%,不結露
(10)外形尺寸:196mm×215mm×86mm
GST-LD-8333型模塊箱
GST-LD-8333型模塊箱GST-LD-8333型模塊箱由GST-LD-8301模塊、GST-AS-200安全柵和模塊箱外殼組成GST-LD-8333型模塊箱可與GST-HX-F8501/2火災聲/聲光警報器配接,組成本質安全型防爆系統。模塊箱接收到火災報警控制器發出的啟動命令后,啟動現場的本安型警報器,并將動作信息傳回火災報警控制器。當出現DC24V電源故障或與現場的本安型警報器連線發生故障時,模塊箱將向火災報警控制器發送故障信號。
模塊箱應安裝在安全區域。
主要技術指標如下:
(1)工作電壓:
總線電壓:總線24V
電源電壓:DC24V
(2)監視電流:
總線電流≤0.7mA
電源電流≤9mA
(3)動作電流:
總線電流≤0.8mA
電源電流≤24mA
(4)連接設備類型:GST-HX-F8501火災聲警報器或GST-HX-F8502火災聲光警報器
(5)連接設備容量:1只
(6)安全柵型號:GST-AS-200
(7)安全柵參數:U0=28V,I0=93mA,L0≤4.0mH,C0≤0.083mF
(8)外殼防護等級:IP55
(9)使用環境:
溫度:-10℃~+55℃
相對濕度≤95%,不結露
(10)外形尺寸:196mm×215mm×86mm
《氣體滅火系統設計規范》GB50370-2005
《建筑設計防火規范》 GBJ16-87
《柜式氣體滅火裝置》GB16670-2006
《潔凈氣體滅火系統標準》NFPA2001
《氣體滅火系統施工及驗收規范》GB50263-97
《火災自動報警系統設計規范》 GB50116-98
客戶提供的有關圖紙和技術資料。
設計范圍:
弱電間及機房。
選用滅火方式:
采用柜式半固定滅火系統設備,實行全淹沒滅火。
設計計算過程:
滅火劑用量計算:
確定防護區滅火設計濃度依據《氣體滅火系統設計規范》(GB50370-2005)中有關規定,檢測室滅火濃度取C=8%;
2、計算防護區的凈空容積(m3):
機房:V =136.8m3
3、滅火劑用量計算:
根據《氣體滅火系統設計規范》(GB50370-2005)中七氟丙烷設計用量的計算公式:
W=K·(V/S)·[C/(100-C)]
式中 W —七氟丙烷的滅火設計用量(Kg);
K —海拔高度修正系數;(取K=1)
C —七氟丙烷滅火設計濃度(%);
S —七氟丙烷過熱蒸汽在101Kpa和預防區最低環境溫度下的比
容(m3/Kg),
V —防護區的凈容積(M3);
其中: S = K1+ K2T
式中: T —溫度(℃)
K1 —0.1269
K2 —0.0005130 20℃時,S=0.13716;
得防護區的滅火劑用量如下:
檔案庫房: W = K·(V/S)·[C/(100-C)]
=1´(200/0.13716)´[10/(100-10)]
=170kg
4、滅火劑儲存量計算:
機房:由設計用量W=170kg,選用2套GQQ90/2.5型柜式滅火裝置,根據我公司產品氣體滅火系統設計手冊90L每瓶充裝85 kg。
設計參數及結果匯總:
1、柜式系統參數表
注:防護區泄壓口宜設在外墻上,應位于防護區凈高的2/3以上。當防護區設有外開的彈簧門或配有彈性閉門器的外開門,其門的開口面積不小于泄壓口計算面積時,可不需另設泄壓口。
2、柜式系統設備組成及系統示意圖
七、維護人員、操作人員的培訓計劃書
一、培訓計劃表
二、培訓計劃概述。
我公司提供詳細的培訓計劃,包括培訓項目、主要內容、培訓時間、培訓地點及培訓考核方式等。培訓的形式包括理論課程和實際操作兩種,培訓的目的應使培訓人員熟悉設備功能,并能順利進行系統設備的實際操作、日常保養和維修。我公司在設備開箱清點前,安裝前免費對施工安裝單位及買方人員進行設備安裝調試培訓。我公司在培訓前三個月向買方及監理工程師提交培訓大綱和具體的課程設置等書面資料,經買方核準后開始培訓。買方有權根據實際工程進度變更培訓計劃。
1.培訓對象、人數、周期和地點等安排
培訓對象:買方的系統設備管理的維修人員。
培訓地點:安裝調試現場或工程安裝工地現場。
培訓安排:安排安裝工地現場培訓和工廠理論及操作培訓各一次,總培訓時間不少于8個工作日,直至對方受培訓人員能夠上崗操作為止。
2.主要培訓項目內容。
我公司對買方有關工程技術人員進行設備性能說明、設備安裝、調試、系統操作、設備保養、維修等內容的培訓,主要分為工廠培訓和工地培訓:
A、工廠培訓項目
技術培訓
設備的滅火原理。
設備的構成。
設備動作原理。
設備的操作方法。
設備的日常檢查維護方法。
設備常見故障及排除原理。
操作培訓
七氟丙烷滅火系統自動運行操作原理。
七氟丙烷滅火系統手動運行操作原理。
七氟丙烷滅火系統機械應急操作原理。
現場更換壓力表操作原理。
每年例行維護保養項目操作原理。
B、工地培訓項目
七氟丙烷滅火系統與報警系統聯動試驗操作原理。
報警系統模擬驅動滅火系統試驗操作原理。
日常系統運行環境監督檢查內容。
緊急情況現場處理方法。
3.有關培訓責任與費用安排
我公司選派的教員均為是經驗豐富的工程師或技師。還將提供培訓所需的所有設施、專用器材;免費提供系統的書面培訓資料,包括設備的原理、結構、設備操作規程及維修課程。我公司人員在工程所在地進行培訓期間所發生的一切費用(含交通、食宿、通訊、辦公)自理。買方需要到我公司培訓的人員費用由雙方協商后確定。
八.技術支持承諾和售后服務承諾
一、售后服務承諾
2)在設備安裝階段,派技術人員就每一項產品的安裝方法向消防安裝單位做示范,就公司產品安裝使用的具體要求和注意事項定期培訓,負責作好《培訓記錄表》。
3)在系統調試前,向業主提交《系統調試方案》,經業主許可后,開始系統調試。系統調試后,記錄系統配置點位及聯動編程等內容,填寫《消防報警/聯動系統調試竣工報告》,同時積極配合消防主管部門、安裝單位進行系統驗收。
4)對系統調試中反映的有代表性的質量問題以及用戶和技術服務人員對產品提出的改進建議等,項目指揮部在匯總后填寫《異常質量信息反饋/落實表》,會同相關部門商討解決方案,并將處理結果呈報業主備案。
2)質保期為自系統經消防主管部門正式驗收之日起,雙方確認后,我公司負責免費維修 24 個月 。并實行終身保修,免費對業主的消防管理人員進行培訓。
3)質保期內因產品質量、非人員操作等原因而導致我公司所提供的系統設備損壞,我公司將免費予以維修、更換。
4)質保期外當系統設備出現故障時,我公司將按維修、更換故障設備的成本價格收取費用。
5)對用戶在實際使用中遇到的有關產品問題,我公司將隨時給予答復。
6)當系統設備出現故障時,我公司技術人員將在接到通知后2個小時之內到達現場,8小時內恢復,更換部件的保修期從更換后再延長一年。
7)我公司將向業主按成本價長期提供備品、備件及專用工具。
8)為保持本系統的先進性,我公司將向業主提供系統所用設備的更新換代信息。
9)我公司INTERNET網主頁(http://www.anf.com.cn)中有最新的系統操作手冊、軟件手冊、安裝手冊、調試手冊、維護手冊、開發手冊、以及我公司新產品的介紹、軟/硬件的更新方法、消防技術發展動向等,以便業主人員可以隨時了解本工程所用產品的性能、安裝、調試、維護、開發方法,以及所用產品的更新換代信息。
二、技術支持承諾
1.深化承諾
我公司承諾將按照甲方招標文件的要求,同時結合施工方及現場的實標情況,對圖紙免費進行二次深化設計和完善,并提供CAD施工圖繪制文件、
同時我們將按照招標單位的要求及有關規定及時提供工程的全部有關資料,包括全套的產品及技術資料、圖紙及相應的電子版。
我公司將對本工程建立完整的項目檔案,包括設備清單、深化設計圖約、安裝及調試技術資料、維修紀錄等,以方便各項服務的管理及資料查詢、
2.保修期時間承諾
設備安裝并經驗收合格后,系統開通進入正常工作運行狀態中,為了確保系統的安全可靠運行,更好的發揮系統的防火能力,減少甲方不必要的麻煩,針對本消防工程的具體情況,我公司選定了全面的維保服務計劃書,將服務的時間和內容以書面形式落到實處。為體現我公司用戶至上的服務理念,我公司提供給用戶免費的質量保證期為合同所列全部系統設備驗收合格,簽署驗收報告,自交付使用之日起24個月。
3.保修期內維保內容承諾
系統驗收后,將向業主提交以下技術文件以作竣工資料:系統操作及維護手冊,系統各相關設備說明書。
3.1建立工程檔案:工程竣工并投入使用后,為用戶建立工程,以便為用戶提供準確的服務。
3.2定期電話訪問:經用戶同意按周或月定期進行電話巡訪,隨時接受并答甲方有關人員的電話咨詢。
3.3備品備件更換:對由于設備質量問題造成的損壞,我公司將到現場免費維修或更換損壞的設備。對其他原因造成的器件損壞,我公司將對損壞的器件作有償維修或更換。
3.4故障響應:設備發生故障后,接到用戶的故障通知2小時內派技術人員到達現場排除故障。
3.5備件服務:我公司將備有充足的備件、配件,可及時向招標方提供技術服務和備件服務。
4.保修期內維保計劃承諾
我公司在全國各地設有有售后服務中心,以滿足全國市場對設備使用過程中出現的質量問題進行維修保養。
4.1人員計劃:由售后服務中心的技術、調試骨干人員擔任本工程售后服務人員,保證售后服務的效率及質量。
4.2培訓計劃:整套系統設備驗收完成后,我公司的工程技術人員將根據用戶需求對用戶的技術及管理人員進行現場培訓,向用戶講授說明各種設備的安裝、保養和應該注意的事項,使用戶能夠盡快地熟悉設備的性能和使用。在設備正常運行后根據用戶要求定期對用戶有關人員進行系統培訓,增強業務能力及技術素質。
4.3備品備件計劃:設備供貨合同簽訂后,我公司將儲備足數量的備品備件,以備用戶緊急需要。
5.保修期滿后維護保養計劃的承諾
維保服務質量關系到消防設備使用期限的長短及消防系統能否保證正常運行,我公司為了真正做到為用戶負責,切實落實以服務為核心的理念,并提供給用戶一個全面的、系統的、可靠的、安全的、周到的維保需求,確保合同范圍內的設備能夠可靠無故障運行,同時提供給用戶一個放心滿意安全的維護服務工程。
(一)、保修期滿后維保服務程序
電話預約→用戶同意→確定維護保時間→按時上門服務→用戶簽認
(二)、保修期滿后維保服務內容
在保修期維保服務的基礎上,繼續完善對本工程服務,確保設備不因使用年限而影響可靠性。
備品備件更換:對損壞設備及時維修或更換。
故障響應:設備發生故障后,接到用戶的故障通知后2小時內派技術人員到達現場排除故障
定期檢測:按用戶要求或滿足消防系統規范及行業管理規定編制維保檢測方案并實施。
6.保修金額度的承諾
6.1在保修期內,我公司承諾將嚴格按照保修期時間、保修期保內容和維保計劃執行,對由于設備質量問題造成的損壞,我公司將到現場免費維修或更換損壞的設備。對其它原因造成的器件損壞,我公司將對損壞的器件作有償維修或更換,維修或更換的設備單價將不超過合同設備的單價。
6.2在保修期滿后,我公司承諾嚴格按照保修期滿后的維保內容和維保計劃執行,對損壞的器件作有償維修或更換,維修或更換的設備費用的單價承諾三年內將不超過合同設備的單價。
機房七氟丙烷系統,無管網氣體滅火施工安裝,有管網氣體滅火施工安裝,北京消防氣體滅火施工安裝,北京氣體滅火系統,七氟丙烷氣體滅火系統,氣體滅火,北京氣體滅火,北京氣體滅火裝置,北京氣體滅火裝置,氣體滅火系統原理,氣體自動滅火系統
第一章 機房火災危險主要因素
1.1網絡機房消防現狀機房電氣的消防安全,必須在設計時就要充分考慮,但是就目前機房建設而言,許多項目業主都以總包的形式包給專業的機房建設公司,合同中涵蓋所有裝修、主設備、軟件以及消防設施,基本達到交鑰匙工程,業主對消防的要求基本上是“消防部門驗收過關,萬事大吉!”,這種消防觀念基本上是停留在被動消費層面,我國的消防管理力量與其它發達國家相比是非常薄弱的,消防部門不可能每個工程都監管的無懈可擊。利潤最大化驅使消防投入在總包合同中艱難前進,投資不足這只是其一;其二,機房主設備大多數是高精尖設備,但消防設施還停留在“通過驗收就行!”的層面,使損失減少到最小可能是每個消防設計人員最想達到的設計境界,目前市場上的不少消防產品可以做到,但大家一提到此問題立刻出現一個問題:錢不夠?。黄淙?,機房建設公司在計算機和裝修方面是很專業的,但對消防應用科學都很陌生,往往在估計投資時過于克扣,使得很多項目估價不足,機房建設公司應該與消防公司經常進行交流,并確定三到四家消防和作單位進行長期合作,這樣一來可以降低造價而提高消防工程的性能。
1.2 造成火災的大體原因
1.2.1電氣線路短路、過載、接觸電阻過大等引發火災事故。
如:1995 廣東汕頭金砂郵電大樓的特大火災,就是因電線老化、絕緣性能降低而短路引起的;2001海南省電信公司微波大樓火災是因為電源接線端頭接觸電阻過大引起的;
1.2.2靜電產生火災。
通信設備的運行及工作人員所穿的衣服等都能產生靜電。如果電信機房接地處理不當,產生的靜電負荷不能很快導人大地而是越積越多,一旦形成高電位,就會發生靜電導電現象,產生火花并引燃周圍可燃物發生火災;
1.2.3雷擊等強電侵入導致火災。
雷電放電時所產生的電效應,能產生高達數萬伏、甚至數十萬伏的沖擊電壓,足以燒毀電力線路和設備,引發絕緣擊穿,發生短路引發火災。雷電放電時所產生的熱效應、靜電感應以及電磁感應都可能引發火災;
1.2.4機房內設備長時間通電、設備故障引發火災。
2000年5 月北京電信公司大興縣青云店支局傳輸機房操作終端因長時間運行,致使顯示器自燃引發火災,造成傳輸機房癱瘓,2 萬部固定電話用戶不能正常通信。由于電信機房的用電設備始終處于24 小時的工作狀態,容易疲勞和老化。
1.2.5使用可燃裝修材料,尤其是空調隔熱層和風管隔熱材料容易被人們疏忽;
1.2.6管理不善,雜亂堆放易燃物品或保養維修時引入易燃易爆的清洗溶劑;
第二章機房工組人員的消防意識
其實每個機房工程或多或少都安裝了消防設施,而且也通過了消防部門的驗收,但真正在發生火災時能否起到作用,我想大多數機房工作人員心里都會打個疑問號。幾年前,筆者曾經目睹過以下事情:工程順利驗收,消防主管部門也派了精兵強將對所用功能作了詳細的測試,工程做的很完美,但此機房還未真正投入使用,應業主要求氣體滅火的電磁執行暫時沒有安裝,消防培訓工作進行了兩天,可以說機房工作人員都會順利操作所有消防設備。但在四個月以后售后人員去例行檢查時發現電磁執行機構還在原位紋絲未動!此時機房已經投入運營兩個多月,這種情況下消防設施實際成了擺設,若真發生火災恐怕后果難以想象。到此,消防驗收部門已經做到仁至義盡啦!他不可能對企業消防監管跟管小學生一樣,事事操心,實際情況是不可能做到;施工單位也苦口婆心培訓了,但也沒接到業主任何詢問的電話或信函。縱觀此事,業主單位本身就消防意識極其淡薄,機房內當時接受培訓的人員很多,但是自從驗收結束后就沒有人進入過消防設備間,對國家規定的一些使用和維護辦法置若罔聞。提高消防安全意識,實際是為消防節省投資:投資最高技術最先進的消防設施=細心維護盡職盡責+一般性消防設施。
第三章機房氣體滅火系統設計要求
3.1火災探測方式的選擇目前在機房消防設計中一般都采用:吊頂內采用點型定溫和點型感煙探測器,因為吊頂內一般都安裝有照明設備,這些設備老化后也極易產生不安全因素;吊頂下也采用點型定溫和點型感煙探測器。
從探測速度上來講,上述方法并不是最理想的,機房內的工況也是非常復雜的,比如說地板內布置纜式線性感溫探測器,因為此類探測器在地板內呈“S”狀布置,探溫點畢竟很稀疏,而地板內的大量纜線著火一般都有大量的煙霧發出,然后才會有足夠溫升去觸動纜式線性感溫探測器,探測速度始終不如人意。有人提出在地板內加裝點型煙感,此種提法只能在地板內不進行通風的前提下提,而且要考慮煙感的安裝位置,數量,要考慮探測器本身的厚度(煙氣向上),而且要考慮煙感的誤報警。最理想的辦法是:探測煙霧采用主動吸氣式感煙探測裝置,并對通風口做重要監視;探溫采用差定溫纜式感溫探測器,除對通訊電纜做“S”狀布置外還應對通風口做同樣重要的布置。對吊頂內和吊頂下采用點型感溫感煙探測器同樣存在與地板內相同的問題,最理想的辦法是:吊頂內和吊頂下都采用吸氣式感煙探測方式,要探測速度更快還可直接將吸氣管深入到機柜內進行探測;吊頂內和吊頂下采用纜式線性探測首先美觀問題就不好處理,所以此時在吊頂內和吊頂下安裝點型定溫比較切合實際,探測速度和確認火災速度是最快的。
從滅火藥劑使用情況來看,及早發現火情后滅火器就可以滅掉,反而節省運行費用,也可將設備的損失降到最低;反之,火災要形成到一定程度才能報警,此時有可能現場人員已經無法控制,滅火藥劑最終肯定會噴掉,但火災對機房設備的損失要大的多。

機房滅火目前采用的滅火劑大多數還是選用七氟丙烷或混合氣體,二氧化碳肯定是不合適,因為溫降會對發熱機器造成損壞。七氟丙烷在機房滅火中可以采用有管網全淹沒滅火形式和無管網全淹沒滅火形式,兩種形式可在具體工程種進行投資比較后定出一種方式,問題不是很大;混合氣體滅火系統在機房滅火中應用也非常多,大多數采用有管網滅火形式,因為同樣大小的機房所用高壓瓶數量七氟丙烷要比混合氣體少一半左右,機房面積一般都很小,混合氣體做無管網形式時無管網箱體數量比較多,再者,啟動電流就是個問題。

3.3滅火劑儲備存裝置數量計算
七氟丙烷滅火系統的規范中有明確規定,防護區內的滅火濃度應校核設計最高環境溫度下的最大滅火濃度,并應符合以下規定:對于經常有人工作的防護區,防護區內最大濃度不應超過表6.0.1中的NOAEL值;對于經常無人工作的防護區,或平時雖有人工作但能保證在系統報警后最長30s延時結束前撤離的防護區,防護區內滅火劑最大濃度不宜超過表6.0.1中的LOAEL值。
| 七氟丙烷的生理毒性指標(V/V%) | ||
| 滅火劑名稱 | NOAEL | LOAEL |
| 七氟丙烷 | 9.0 | 10.5 |
通常有管網系統存在生理毒性指標核算,而無管網滅火系統可以不進行生理毒性指標核算,因為無管網本身就是按照實際用量儲存滅火劑的。
3.4防火分割在消防設計過程中應該注意的若干問題
每個氣體滅火系統在設計之初都要先進行滅火分區劃定,滅火分區劃定的結果往往直接影響整個工程的造價,由于每個工程的實際使用工藝流程不盡相同,滅火分區的劃定也五花八門,具體劃分方法以以下實例舉例:

3.5空調通風系統對機房滅火區劃分的影響
如下圖所示,若三個房間從吊頂到地板都采用獨立的空調系統,那么將機房1和機房2劃作一個區域或劃為兩個單獨滅火區都是可行的。但如果采用一臺精密空調為三個房間服務且為“上送風,地板下回風”方式這三個房間就必須劃分成一個滅火區域,藥劑儲備應該是上者的3倍或1.5倍,對工程的投資影響是比較大的。除過滅火劑和噴放管道布置要作為一個保護區考慮外,探測范圍也應該分塊進行探測但還是一個探測區域,警報區域也應該按照一個區域來設置和聯動。

3.6火警信號集中管理的必要性
機房氣體滅火系統一般要與大樓的總火災報警系統(中控)進行通訊,氣體滅火系統的控制器應該向中控提供火警、噴放、故障三種信號,以便中控對此區域有一定的了解。對在高層建筑內的氣體滅火系統必須與中控有火警、噴放、故障三種信號通訊,而中控并不控制氣體滅火系統,就算機房有人24小時值班也要與中控通訊,因為高層建筑消防他是一個整體系統,一旦某個部位發生火災,大樓內相關的警報和應急措施都得啟動,不通訊則此區域對于中控而言將成為一個“盲區”,“盲區”在高層建筑里面是不允許出現的。
有些工程中機房的探測器本身就是利用中控的總線探測器,利用控制模塊向滅火控制器傳輸報警狀態信號。這樣只能說是報警信號直接通訊,但機房發生火災后到底啟動沒啟動滅火設施中控就不得而知,所以還要進行噴放和故障狀態通訊。
3.7手動啟動按鈕的唯一性
在氣體滅火系統的設計中經常會碰到一個保護區兩個或兩個以上的出口,一般在出口都會設置手動啟動和停止按鈕,然而這種方式從便捷層面上講應該是反應速度最快的方式,但在火災發生時有可能出現判斷不通一的時候,例如以下情況很有可能就會耽誤滅火時間,造成更大的設備損壞:

若只在北門布置“啟動/停止按鈕”,那么這兩個工作人員肯定會向同一個出口會合,即“北門”。此時兩個人的判斷會統一起來:一、火勢無法控制,立即啟動滅火系統;二、火勢應該可以控制,兩把滅火器同時工作。
所以對滅火區域的手動啟動、停止按鈕的布置強調唯一性是有必要得,安裝唯一啟動裝置也是切實可行的。
3.8警報裝置的安裝位置和數量
警報裝置一般用警鈴和聲光報警器,一些機房氣體滅火工程中將警鈴和聲光報警器安裝在出口外,顯然是警告外面的人員“機房內發生火災”,而機房里面的人卻不被警告,實際上防氣指示燈的警告作用在重復設置。最理想的辦法是:在機房內同時設置警鈴和聲光報警器,其中警鈴是用來告知機房區域有火情,即兩種探測器中一種已經動作,而聲光報警器響時告知火災已經被系統確認并且處在延時噴放階段。在出口外并聯一個警鈴,里外同時響,并且在門外設置“放氣指示燈”。這樣一來即警告了機房內的人又警告了機房外的人,使得火情發展進度被準確認知,有利于整個機房的滅火和人員疏散工作。
警報裝置除了警鈴和聲光報警器外還有一個“放氣指示燈”,“放氣指示”在的一些廠家是從延時開始就常亮,一些廠家是確認氣體噴射時才亮,此兩種都沒有明確“延時噴放”和“已經噴放”的狀態,最合理的應該是“延時噴放”階段閃亮,“已經噴放”后常亮。
第四章
4.1編制依據4.1.1國家現行有關規范、技術規范
《建筑設計防火規范》GBJ16-87(2001年版)
《火災自動報警系統設計規范》GB50116-98
《火災自動報警系統施工及驗收規范》GB50166-92
《氣體滅火系統施工及驗收規范》GB50263-2007
《建筑安裝工程質量檢驗評定統一標準》GB50159-92
《建筑施工高處作業安全技術規范》JGJ80-91
《建筑電氣工程施工質量驗收規范》GB50303-2002
《建筑施工安全檢查標準》JGJ59-99
《建筑機械使用安全技術規程》JGJ33-86
4.1.2有關的法律、法規及相關規定文件等。
4.2編制原則
4.2.1認真執行工程建設程序的原則
4.2.2項目排隊、保證重點、統籌安排、保證施工進度的原則。
4.2.3遵循施工工藝及技術規律,合理安排施工程序和施工順序的原則。
4.2.4采用平行流水、立體交叉作業的施工方式,運用網絡計劃跟蹤技術進行動態管理,保證有節奏、均衡、連續施工的原則。
4.2.5科學地安排施工力量,保證各施工期的勞動力人數和工程施工的連續性。
4.2.6節約、合理地安排臨設,合理儲備物資,減少物資運輸,科學的布置施工平面圖。
第五章
5.1施工目標我公司把“讓顧客滿意,建精品工程”作為本工程的施工總目標,嚴格遵守雙方簽訂的施工合同,按照設計圖紙要求,嚴格組織施工,讓建設單位放心,以確保總目標的實現。
5.2施工技術方案
5.2.1施工技術措施
(1)、設備(進場)驗收
進入施工現場的管材、產品要與設計規格型號、數量相符,具有合格證、使用說明,經檢查驗收合格后方可進場。材料進場后,要作防塵、防潮、防碰、防砸、防壓等防護措施,妥善保管。
(2)施工準備
①氣體滅火系統施工前應具備的技術資料:
§設計施工圖,設計說明書,系統及其主要組件的使用、維護說明書。
(3)探測器的安裝
探測器安裝應在地面裝修結束后進行,探測器的底座應固定可靠,其連接導線必需可靠壓接或焊接,當采用焊接時,不得使用腐蝕性的助焊劑,外接導線應有0.15米的余量;探測器周圍0.5米內,不應有遮擋物;探測器至空調送風口的水平距離不應小于1.5米,至多孔送風孔口的水平距離不應小于0.5米,安裝完畢后的探測器應用探測器保護罩進行保護,待施工現場清場后,調試時方可取下保護罩。
(4)報警按鈕的安裝
報警按鈕應安裝在墻上距地面高度1.5米處,且應安裝牢固不得傾斜;手動報警按鈕外接導線應留有0.1米的余量,且在端部應有明顯標志。
5.2.1.1聯動調試
嚴格按照施工及驗收規范的要求進行聯動測試,對氣體滅火系統的聯動方式自動與手動等都應進行一一測試,合格寫出調試報告,系統進入正常運行狀態。
5.2.2 消防工程整體調試方案
由項目技術總負責人編制整體調試方案,提交業主及監理方認可后,組織各相關施工單位進行消防工程的整體調試。
按設計要求,對消防設備的各項聯動功能逐一進行測試。
(1)火災探測器按實際數量的10%進行試驗。
(2)氣體滅火系統的功能測試:
①人工啟動和緊急切斷試驗3次;
②與固定滅火設備聯動控制的其他設備試驗3次;
5.3施工準備工作計劃
主要勞動力、材料、施工及檢測設備、儀器安排及進場計劃
5.3.1施工準備工作計劃
主要是技術準備,包括熟悉和審查施工圖紙,地質資料調查,編制施工圖預算和施工預算,編制施工組織設計。物資準備包括建筑材料準備,施工機具的準備并制定各種物資需要量計劃及勞動組織,現場準備和部分外協工作。
5.3.2施工機具的進出場計劃
在施工準備期間,配電箱、電源盤等小型機具進駐現場,管路預埋檢查清理完后,萬用表、接地電阻測試儀、檢測工具箱等進入現場,小型機具由項目部根據施工進度需要進行組織協調。
5.3.3原材料進出場計劃
本工程進場后,電線、金屬軟管等材料進入現場;絕緣測試合格后,施工現場清理干凈后,探測器、報警按鈕、等陸續進入現場,氣溶膠滅火裝置最后進入施工現場。
5.3.4勞動力計劃
本工程在保證工期、保證質量的前提下,計劃用技術素質高、能在各個施工期間保證正常施工的我公司專業班組及配屬的勞務施工隊伍。
5.4初步交貨進度計劃
施工順序與施工配合、安裝施工進度計劃及保證措施
5.5工程質量保證措施
按照本工程招標文件的要求及我公司的實力,我們確保該工程達到優良標準,為保證本工程質量目標的實現,特制定如下措施。
質量保證體系
為保證工程質量,建立嚴格的質量管理體系,公司設立工程質量檢查小組,定期和不定期到工地現場進行質量檢查。項目部成立質量領導小組,項目技術負責人任組長,各工種負責人任成員,配備專職質檢員,實行質量層層負責制,做到領導有布置,操作前有交代,操作中有檢查,每道工序有自檢、互檢、驗收評定,形成齊抓共管、嚴格把關,一著不讓這樣一管理網絡。
第六章
6.1熱氣溶膠滅火裝置
S型氣溶膠浸漬時間:≥10min
滅火時間:≤30s
噴射時間:≤120s,噴射滯后時間 :≤5s
工作環境溫度范圍:-20℃~55℃
工作環境相對濕度:不大于95%
啟動電流:1A,啟動電壓:DC 24V
最小啟動電流:250mA 5ms
最大安全電流:150mA 5min
多臺聯動方式:串聯方式
滅火劑存儲年限:7年
6.1.2.技術要求
a.啟動方式;自動、手動(緊急啟停按鈕)。
b.產品通過國家消防安全強制檢測中心檢測。、
c.制造商不帶氣體滅火控制器及報警裝置、煙感、溫感。
6.1.3 熱氣溶膠滅火系統裝置主要產品性能
a.滅火裝置啟動滅火時,產生大量氣溶膠(煙霧),抑制火災的燃燒反應達到滅火的目的;
b.滅火裝置啟動后產生的氣溶膠(煙霧)無毒、無公害、無腐蝕、不損耗大氣臭氧層;
c.滅火裝置與火災報警控制器組網可實現高速、高效、全方面滅火,具有自動探測、自動報警、自動啟動和手動啟動的綜合功能,對無人條件下的火災和消防人員難以達到部位火災的滅火具有獨特的優勢;
d.可多具聯網,電線連接,保護空間不受線路長短影響;
e.系統無管網、無壓力容器驅動裝置、閥門、管道等,可節約使用面積及工程費用;
f.滅火裝置是固體存放無泄漏,在常壓下工作,安全可靠、儲運方便。
6.1.3 熱氣溶膠滅火系統應用范圍
1.可應用于撲救下列形式火災:
a: 變(配)電站(房)、電氣控制室、發電機房、電纜夾層、電纜井、電纜溝、電子計算機房、通訊機房等場所的火災;
b: 生產、使用或貯存柴油(—35號柴油除外)、重油、變壓器油、潤滑油、動、植物油等各種丙類可燃燒液體的場所的火災;
c: 生產、使用或貯存可燃燒固體物質的場所的可燃燒固體物質的表面火災。
6.1.4 使用維護說明以及設備外形圖
1使用、操作注意事項:
a、QYS滅火裝置安裝使用前應仔細閱讀使用說明書;
b、每臺QYS滅火裝置附使用說明書一份,產品合格證一張;
c、滅火裝置的安裝、驗收和維護由于公司培訓的專業人員或當地供應商的專業人員進行;裝置在安裝工程全面驗收合格前,嚴禁將任何外接組合柜線路與本滅火裝置連接,驗收合格后,在未連接本滅火裝置啟動信號①、②或者組合柜下柜箱的①、③之前必須確保無啟動信號的外線連接該裝置,啟動①、②或者組合柜下柜箱的①、③信號外線輸出應符合負載小于150mA安全電流后方可連接;
d、安裝后得隨意移動,嚴禁拆散;
e、發現火災、人員立即撤離現場,撤離時應關好門窗,形成相對封閉空間,保證滅火效果;在實施完氣溶膠撲滅火災后,應對防護區做好通風換氣工作,并及時做好現場清理、設備清理、恢復等工作,保證設備正常運行;
f、裝置有效期7年(見產品銘牌)。超過有效期后,由使用單位與廠家或供應商聯系更換。
6.1.5 熱氣溶膠滅火系統裝置安裝
a. 滅火裝置的安裝、驗收和維護由于公司培訓的專業人員或當地消防工程公司進行。
b. 滅火裝置防護區的工程設計、安裝和驗收應符合國標50370-2005熱氣溶膠預制滅火系統設計規范要求。當滅火裝置和火災報警系統及其他消防控制系統聯網時,還應符合GB50166《火災自動報警系統施工及驗收規范》的規定。
c. 滅火裝置安裝的正前方0.5米內不允許有任何障礙,其安裝不受位置高低的影響,就地擺放時,宜靠墻壁。
d. 滅火裝置不宜安裝下列位置:
①:臨近明水,火源處;
②:臨近進風,排風口,門窗及其他開口處;
③:容易被雨淋,水澆,水淹處;
④:疏散通道;
⑤:經常受振動、沖擊、有腐蝕處。
e.地下防護和無窗或固定窗戶的底墑防護區,應有機械排風裝置。
f. 防護區不宜開口,如必須開口時,應設置自動關閉裝置。有困難時,應考慮開口流失補償,加大滅火劑用量給予補償。
g. 同一防護區的滅火裝置應同時啟動。
i.安裝前,應由專業安裝維護人員檢查火災探測器、火災自動報警控制器、線路等是否完好;并將火災探測器與火災自動報警接好,模擬火災探測器所需煙的濃度和溫度,測試負載輸出、報警等正常后方能安裝。(注意:安裝工程全面驗收合格后,在未連接本滅火裝置啟動信號①、②或者組合柜下柜箱的①、③之前必須確保無啟動信號的外線連接該裝置啟動①、②或者組合柜下柜箱的①、③信號線輸出應符合負載小于150mA安全電流后方可連接)
j.滅火裝置接線圖:

6.1.6 熱氣溶膠滅火系統操作說明
在每個防區內,火災探測由若干個煙感、溫感探測器完成。當防護區火災自動報警控制器收到煙感、溫感任何一種火災信號后,經火災自動報警控制CPU運算判斷后,首先發出火災預警信號,另一方面輸出即時啟動信號關閉空調或自動放下防火卷簾;同時輸出延時30S的啟動信號自動啟動滅火裝置進行滅火。啟動后,滅火裝置將釋放信號反饋給報警控制器,點亮釋放顯示燈,提示人們切勿進入火災防區。
手動控制盒,供緊急情況下,啟動或停止滅火裝置時使用,無論火災自動報警控制器處在自動或手動方式,按此開頭(擊碎玻璃按下)即可緊急啟動滅火裝置。
基礎管接線路圖和電儀控制原理圖
接線路圖和控制原理圖

說明:滅火系統各組成部分及設備的不帶電外殼,應可靠接地,并應考慮防雷擊感應電流干擾滅火系統的措施。如溫感、煙感探測器接線,滅火裝置的啟動線,采用雙絞線,或雙芯金屬屏蔽線的。
6.2 氣體滅火控制裝置

| [產品名稱] | 報警滅火控制盤 |
| [產品描述] | 它是一種火災自動報警、氣體滅火控制設備,通過手動或自動方式啟動滅火裝置,能實現火災自動報警信號聯動氣體滅火執行機構的作用。它主要應用在計算機房、檔案館等需重點防火的場所,和火災報警控制器聯網使用。 |
| [技術參數] |
工作電壓:DC24V 滅火分區:一個分區 延遲時間:0~63秒可調 線 制: 每個區四總線 工作電流:靜態<20mA;啟動電流<2A 環境條件:溫度 0℃~+50℃; 濕度 ≤92% 通訊標準:RS485 結構形式:入柜式; 3U |
| [相關產品] | 火災報警探測器、XA-YKS4132急啟急停按鈕、XK-YKS4312啟動檢測模塊 |
我公司對本工程確定的質量目標為:確保工程達到優良標準。
第七章 主要設備報價表
7.1報價方案1(氣溶膠氣體滅火設備)
| 氣體滅火報警及氣溶膠滅火裝置產品報價表 | |||||
| 序號 | 產品名稱 | 單位 | 單價 | 數量 | 總價 |
| 1 | 氣體滅火控制裝置 | 臺 | 1 | ||
| 2 | 光電感煙火災探測器 | 套 | 3 | ||
| 3 | 感溫火災探測器 | 套 | 6 | ||
| 4 | 噴灑模塊 | 只 | 1 | ||
| 5 | 輸入輸出模塊 | 只 | 1 | ||
| 6 | 火災聲和光警報器 | 只 | 1 | ||
| 7 | 緊急啟停按鈕 | 只 | 1 | ||
| 8 | 放氣指示燈 | 只 | 1 | ||
| 9 | 氣溶膠滅火裝置 | 臺 | 2 | ||
| 合計F1 | |||||
| 安裝調試費F2 | F1*10% | ||||
| 總計 | F1+F2 | ||||
7.2 報價方案2(七氯丙烷設備)
| 序號 | 產品名稱 | 單位 | 單價 | 數量 | 總價 |
| 1 | 七氯丙烷滅火控制器 | 臺 | 1 | ||
| 2 | 滅火劑 | 公斤 | 140 | ||
| 3 | 鋼瓶 | 套 | 2 | ||
| 4 | 火災報警控制器 | 臺 | 1 | ||
| 5 | 氣體滅火控制器 | 臺 | 1 | ||
| 6 | 感溫火災探測器 | 套 | 2 | ||
| 7 | 光電感煙火災探測器 | 套 | 2 | ||
| 8 | 手動報警按鈕 | 套 | 1 | ||
| 9 | 火災聲和光警報器 | 只 | 2 | ||
| 10 | 緊急啟停按鈕 | 只 | 2 | ||
| 11 | 放氣指示燈 | 只 | 2 | ||
| 合計(含運費、施工安裝調試費、發票) | |||||
機房現在存在問題;
第一、服務器機柜距離燈太近,消防規定應該在50cm以上。
第二、機房現用的是二氧化碳滅火器,不符合消防規定要求。
第三、煙感距離機柜太近,在有條件下再增加一個溫感(現有為煙感)。
方案一;
優點:成本費用低,安裝簡單。
缺點:不能靈活獨立使用,與現在噴淋系統存在沖突,可擴展性低,不能安裝氣體滅火附屬設備。
方案二;
優點:獨立安裝,報警靈敏,及時啟動氣體滅火系統,起到安全滅火目的,可增容性強。
缺點:成本費用高,需要三個工作日完成。
一、滅火劑種類選擇
在經常有人員工作的防護區,選用氣溶膠滅火系統。
氣溶膠滅火劑技術指標:
| 性能 | 技術指標 |
| 純度 | ≥99.6% |
| 酸度 | ≤3ppm |
| 水含量 | ≤10ppm |
| 不揮殘留物 | ≤0.01% |
二、規范和標準
氣體滅火系統的設計、安裝及驗收,主要依據以下的規范及標準:1、 《氣體滅火系統設計規范》GB50370-2005
2、 《柜式氣體滅火裝置》GB16670-2006
3、 《建筑設計防火規范》 GBJ16-87
4、 《潔凈氣體滅火系統標準》NFPA2001
5、 《氣體滅火系統施工及驗收規范》GB50263-97
6、 《火災自動報警系統設計規范》 GB50116-98
7、 客戶提供的有關圖紙和技術資料。
三、設備運行的環境條件
3.1 環境溫度:0℃~50℃3.2 相對濕度:5%~95%
四、系統功能
4.1系統的滅火過程
發生火災時,當一路探測器報警后,設在該防護區域內的警鈴動作;兩路探測器都報警后,設在該防護區域內外的蜂鳴器及閃燈動作;系統進入延時階段,控制盤完成相關設備的聯動控制。經過延時后,控制盤輸出24V直流信號電源啟動儲氣瓶組上的電磁閥,打開儲氣瓶組釋放滅火劑氣體,滅火劑沿噴射短管和噴頭輸送到防護區域滅火。如值班人員先于火災探測系統發現火情,當用手提式滅火器或其它移動式滅火設備無法撲滅火災時,可直接手動啟動來滅火。如發現是系統誤動作,或確有火災發生但僅使用手提式滅火器和其它移動式滅火設備即可撲滅火災,可按下設在防護區域門外的緊急止噴按鈕,可以使系統暫時停止釋放藥劑。如需繼續開啟氣體滅火系統,則只需松開緊急停止開關即可。
4.2系統的控制方式
系統具有自動控制、手動控制和機械應急操作三種控制啟動方式。4.2.1 自動控制方式
當防護區長期無人值班或很少有人出入時,應將火災報警控制器上的控制方式選擇鍵置于“自動”位置,同時將防護區門外的手動自動轉換開關置于“自動”狀態。此時控制系統處于自動工作狀態,當防護區發生火災時,氣體滅火系統自動完成防護區內的火災報測、報警聯動控制及噴氣滅火整個過程。防護區內的單一探測回路探測火災信號后,控制盤啟動設在該防護區內的警鈴。同時向FAS系統提供火災預報警信號。同一防護區內的兩個回路都探測到火災信號后,控制盤啟動設在該防護區域內外的聲光報警器,經過30秒延時后,火災報警控制器輸出24V直流電,啟動滅火系統。滅火劑經噴射短管和噴頭釋放到防護區,控制面板噴放指示燈亮,同時報警控制器接收壓力訊號器反饋信號,開啟防護區內門燈,避免人員進入,直至確認火災已經撲滅。
設置于防護區門外的手動自動轉換開關應具有較強的抗沖擊能力,且應采取有效防止誤操作的措施。在系統處于自動工作狀態下,當報警系統誤報警進入延時時間時,手動自動轉換開關應能停止系統噴放滅火藥劑。
4.2.2 手動控制方式
當防護區經常有人工作時且有人值班的情況下,為了防止系統誤動作,應將火災報警控制器上的控制方式選擇鍵置于“手動”位置,并將防護區門外的手動自動轉換開關置于“手動”狀態。此時系統處于手動控制狀態。當防護區發生火災時,火災探測器將探測到的火災信號輸送給控制器,控制器立即發出聲、光報警信號,同時發出聯動信號,但不會輸出啟動滅火系統信號,此時需要經值班人員確認火災后,按下控制器上相對應防護區的緊急啟動按鈕,即可按預先設定的程序啟動滅火系統,釋放七氟丙烷氣體進行滅火。這種手動控制,實際上還是通過電氣方式的手動控制。手動啟動后,系統將不經過延時而被直接啟動,釋放滅火劑。
4.2.3 應急機械手動控制方式
4.2.4 在發現火災后,系統自動、手動兩種啟動方式均失靈的情況下,可直接手動啟動儲氣瓶內實行應急機械手動控制方式,人為開啟啟動裝置,進行滅火。
4.2.5 自動滅火系統的控制程序


五、氣體滅火及消防控制設備主要技術參數
● JTY-GD-G3型點型光電感煙火災探測器
JTY-GD-G3型點型光電感煙火災探測器采用無極性信號二總線技術,可與各類火災報警控制器配合使用。本探測器主要具有以下特點:(1)內置帶A/D轉換的八位單片計算機,具備強大的分析、判斷能力,通過在探測器內部固化的運算程序,可自動完成對外界環境參數變化的補償及火警、故障的判斷,存儲環境參數變化的特征曲線,極大提高了整個系統探測火災的實時性、準確性;
(2)采用電子編碼方式,現場編碼簡單、方便;
(3)采用指示燈閃爍的方式提示其正常工作狀態,可在現場觀察其運行狀況;
(4)底部采用密封方式,可有效防水、防塵、防止惡劣的應用環境對探測器造成的損壞;
(5)專利產品,專利號為ZL99311724.4。
主要技術指標如下:
(1)工作電壓:總線24V
(2)監視電流≤0.6mA
(3)報警電流≤1.8mA
(4)報警確認燈:紅色,巡檢時閃爍,報警時常亮
(5)使用環境:
溫度:-10℃~+55℃
相對濕度≤95%,不結露
(6)編碼方式:十進制電子編碼
(7)外殼防護等級:IP23
(8)外形尺寸:
直徑:100mm,高:56mm(帶底座)
JTY-GD-G3型點型光電感煙火災探測器符合國家標準GB 4715-2005《點型感煙火災探測器》。
此產品已獲得:CCC認證、檢驗報告、英國LPCB認證、美國UL認證、歐盟CE認證、中國船級社發放的船用產品型式認可證書。
● JTW-ZCD-G3N型點型差定溫火災探測
器
JTW-ZCD-G3N型點型感溫火災探測器采用無極性信號二總線技術,可與本公司生產的各類火災報警控制器的報警總線以任意方式并接,特別適用于發生火災時有劇烈溫升的場所,與感煙探測器配合使用更能可靠探測火災,減少損失。本探測器具有以下特點:(1)結構新穎、外形美觀、性能穩定可靠;
(2)采用帶A/D轉換的單片機,實時采樣處理數據、并能保存14個歷史數據,曲線顯示跟蹤現場情況;
(3)地址編碼由電子編碼器直接寫入,工程調試簡便可靠;
(4)專利產品,專利號為ZL99311722.8。
主要技術指標如下:
(1)探測器類別:A1R
(2)工作電壓:總線24V
(3)監視電流≤0.6mA
(4)報警電流≤1.8mA
(5)報警確認燈:紅色,巡檢時閃爍,報警時常亮
(6)使用環境:
溫度:-10℃~+50℃
相對濕度≤95%,不結露
(7)編碼方式:十進制電子編碼
(8)外殼防護等級:IP33
(9)外形尺寸:
直徑:100mm,高:58mm(帶底座)
JTW-ZCD-G3N型點型差定溫火災探測器符合國家標準GB 4716-2005《點型感溫火災探測器》。
此產品已獲得:CCC認證、檢驗報告、英國LPCB認證、美國UL認證、歐盟CE認證、中國船級社發放的船用產品型式認可證書。
● GST-LD-8301型輸入/輸出模塊
GST-LD-8301型輸入/輸出模塊用于現場各種一次動作并有動作信號輸出的被動型設備如:排煙閥、送風閥、防火閥等接入到控制總線上。本模塊采用電子編碼器進行編碼,模塊內有一對常開、常閉觸點。模塊具有直流24V電壓輸出,用于與繼電器觸點接成有源輸出,滿足現場的不同需求。另外模塊還設有開關信號輸入端,用來和現場設備的開關觸點連接,以便對現場設備是否動作進行確認。本模塊具有輸入、輸出具有檢線功能。應當注意的是,不應將模塊觸點直接接入交流控制回路,以防強交流干擾信號損壞模塊或控制設備。
主要技術指標如下:
(1)工作電壓:
總線電壓:總線24V
電源電壓:DC24V
(2)監視電流:
總線電流≤1mA
電源電流≤5mA
(3)動作電流:
總線電流≤3mA
電源電流≤20mA
(4)線制:與控制器采用無極性信號二總線連接,與DC24V電源采用無極性電源二總線連接
(5)無源輸出觸點容量:DC24V/2A,正常時觸點阻值為100kΩ,啟動時閉合,適用于12V~48V直流或交流
(6)有源輸出容量:DC24V/1A
(7)輸出控制方式:脈沖、電平(繼電器常開觸點輸出或有源輸出,脈沖啟動時繼電器吸合時間為10s)
(8)出廠設置:常開檢線輸入、有源輸出方式
(9)使用環境:
溫度:-10℃~+55℃
相對濕度≤95%,不結露
(10)外殼防護等級:IP30
(11)外形尺寸:
86mm×86mm×43mm(帶底殼)
GST-LD-8301型輸入/輸出模塊符合國家標準GB 16806-2006《消防聯動控制系統》。
此產品已獲得:CCC認證、檢驗報告、英國LPCB認證、歐盟CE認證。
● HX-100B火災聲光警報器火災聲光警報器是一種安裝在現場的聲光報警設備,當現場發生火災并確認后,安裝在現場的火災聲光警報器可由消防控制中心的火災報警控制器啟動,發出強烈的聲光報警信號,以達到提醒現場人員注意的目的。
HX-100B型火災聲光警報器為編碼型警報器,可直接接入火災報警控制器的信號二總線(需由電源系統提供二根DC24V電源線)。
主要技術指標如下:
(1)工作電壓:
信號總線電壓:24V 允許范圍:16V~28V
電源總線電壓:DC24V 允許范圍:DC20V~DC28V
(2)工作電流:
總線監視電流≤0.8mA 總線啟動電流≤6.0mA
電源監視電流≤10mA 電源動作電流≤160mA
(3)線制:四線制,與控制器采用無極性信號二總線連接,與電源線采用無極性二線制連接
(4)聲壓級≥85dB(正前方3m水平處(A計權))
(5)使用環境:
溫度:-10℃~+50℃
相對濕度≤95%,不結露
(6)外殼防護等級:IP43
(7)外形尺寸:
90mm×144mm×57mm(帶底殼)
HX-100B火災聲光警報器符合國家標準GA385-2002《火災聲和/或光警報器》。
此產品已獲得:國家消防電子產品質量監督檢驗中心簽發的型式檢驗報告、中國船級社發放的船用產品型式認可證書。
氣體滅火控制系統
● GST-QKP01型氣體滅火控制器/火災報警控制器
GST-QKP01氣體滅火控制器 /火災報警控制器(簡稱為GST-QKP01)是為適應工程設計的需要而開發的。GST-QKP01具有火災探測報警和氣體滅火控制雙重功能,可配接各種編碼火災探測器、手動報警按鈕、緊急啟/停按鈕、聲光警報器、氣體噴灑指示燈、手自動轉換開關以及輸出模塊,實現1個防火區的火災報警和氣體滅火控制。GST-QKP01滿足GB 4717-2005 《火災報警控制器》和GB 16806-2006《消防聯動控制器》中有關氣體滅火控制器的要求,為室內使用設備。GST-QKP01具有以下特點:
(1)配置靈活、可靠性高
(2)功能強、控制方式靈活
(3)窗口化、漢字菜單式顯示界面
(4)模塊式開關電源
GST-QKP01并且具有火災探測及報警功能;能控制實現氣體滅火設備的啟動噴灑;GST-QKP01收到啟動控制信號后能啟動現場的區域訊響器報警、自動顯示延時且指示延時時間;并聯動啟動輸出模塊實現關閉門窗、防火閥和停止空調等功能;延時啟動的延時時間在0~30秒連續可調;具有停動功能;具有手自動轉換功能;自身帶有備電,在主電缺失時可自動進入備電運行狀態,能給備電充電并有備電保護功能;具有信息記錄、查詢功能,可保存最后的999條記錄。
主要技術指標如下:
(1)工作電壓:交流AC220V 50/60Hz ,允許電壓變化范圍 AC187V~AC242V;
(2)功耗:監視狀態功耗≤20W;最大功耗≤120W;
(3)備用電源:2個DC12V/7Ah密封鉛電池;
(4)氣體噴灑輸出:DC24V/2A,脈沖方式/持續方式,可調;
(5)輔助24V電源輸出:最大0.6A;
(6)電池充電電流:最大300mA;
(7)液晶屏規格:128×64點,可同屏顯示32個漢字信息;
(8)容量
可帶1個區的氣體滅火設備,實現對1個防護區的保護。其中所帶設備及數量如下:
電磁閥:1個,額定電壓DC24V,最大電流2A;
壓力開關:1個,常開觸點,動作時閉合;
區域訊響器:1~5個,編碼地址范圍1~10;
氣體噴灑指示燈:1~5個,編碼地址范圍11~20;
緊急啟/停按鈕和手自動轉換開關:共1~10個,編碼地址范圍21~30;
輸出模塊:1~3個,編碼地址范圍31~40;
點型感煙探測器:1~10個,編碼地址范圍41~50;
其它探測器(如感溫、火焰等):1~10個,編碼地址范圍51~60;
手動報警按鈕:1~10個,編碼地址范圍61~70;
聲光警報器:1~2個,非編碼。
(9)線制
| 線制 | 連接線 | 距離 | 負載或連接設備 |
| 通信總線24V | ≥1.0 mm2雙絞線 | <0.5km | 總線設備 |
| 電源線DC24V | 1.0~2.0mm2RV線 | <0.5km | 小于0.6A |
| RS-485 總線 |
≥1.0mm2 雙絞線 或屏蔽線 |
<1.2km | 區域或集中控制器 |
| 其它線 | 1.0~2.0mm2RV線 | <0.5km |
工作溫度:-10℃~50℃
相對濕度≤95%,不凝露
(11)外形尺寸:長413mm×寬330mm×厚97mm。
(12)壁掛安裝于防護區門口,支持上進線方式。
GST-QKP01型氣體滅火控制器 /火災報警控制器符合國家標準GB 4717-2005《火災報警控制器》、GB 16806-2006《消防聯動控制系統》。
此產品已獲得:CCC認證、檢驗報告。
● GST-LD-8317型氣體噴灑指示燈
GST-LD-8317氣體噴灑指示燈是氣體滅火系統的配套產品,通常安裝在被保護場所的入口處。當氣體噴灑后,氣體滅火控制器(以下簡稱控制器)將啟動噴灑燈發出燈光指示,提醒人員注意并采取相應的措施。本噴灑燈為編碼型,可與公司氣體滅火系統控制器配套使用。氣體噴灑指示燈與控制器進行通信采用數字信號,工作穩定可靠,對電磁干擾有良好的抑制能力;地址碼為電子編碼,可由電子編碼器事先寫入,也可由控制器直接改寫,工程調試簡便。
主要技術指標如下:
(1)工作電壓:
信號總線電壓:24V 允許范圍:16V~28V
電源總線電壓:DC24V 允許范圍:DC20V~DC28V
(2)工作電流:
信號總線監視電流≤3mA 電源總線監視電流≤2mA
信號總線動作電流≤4mA 電源總線動作電流≤25mA
(3)閃光頻率:每分鐘閃亮60±6次
(4)編碼方式:電子編碼方式,編碼范圍可在11~20之間任意設定
(5)線制:與氣體滅火控制器采用四線連接。其中兩線接總線,無極性;
另外兩線接電源DC24V,無極性
(6)使用環境:
溫 度:-10℃~+50℃
相對濕度≤95%,不凝露
(7)外形尺寸:315.5mm×113.5mm×39.4mm(帶底
● GST-LD-8318型緊急啟停按鈕
GST-LD-8318緊急啟/停按鈕,用于控制氣體滅火系統的啟動及停動。通常安裝在現場,當被保護的區域內發生火災時,按下“按下噴灑”按鍵,即可向氣體滅火控制器(以下簡稱控制器)發出氣體噴灑請求信號。氣體滅火控制器發出氣體噴灑命令,經延時,啟動氣體噴灑電磁閥。在延時期間,若現場人員確認無火災發生,可立即按下“停止”按鍵,終止啟動。按鈕為編碼方式,啟動和停動共占一個編碼點;按鈕可提供輸出無源常開觸點信號,可直接控制聲光警報器等設備。
主要技術指標如下:
(1)工作電壓:總線24V,允許范圍:16V~28V
(2)監視電流:≤0.8mA,報警電流≤10mA
(3)編碼方式:電子編碼方式,編碼范圍可在11~20之間任意設定
(4)常開輸出觸點:額定值DC60V、0.1A,接觸電阻≤100mW
(5)啟動方式:擊碎玻璃罩后,按下“按下噴灑”按鍵
(6)啟動零件類型:重復使用型
(7)“按下噴灑”按鍵復位方式:用專用鑰匙復位
(8)指示燈:
“按下噴灑”按鍵:紅色,按下時常亮
“停止”按鍵:綠色,按下時常亮
(9)線 制:與氣體滅火控制器采用無極性兩線制連接
(10)外殼防護等級:IP33
(11)使用環境:
溫 度:-10℃~+55℃
相對濕度≤95%,不凝露
(12)外形尺寸:112(長)mm´133(高)mm´65mm(厚)
● GST-LD-8316手自動轉換開關
GST-LD-8316手自動轉換開關(以下簡稱轉換開關),用于控制氣體滅火系統在手動狀態和自動狀態之間的轉換,同時還有緊急啟動和停動功能。通常安裝在保護區門口便于操作的位置,當有人員進入被保護區域時,可通過轉換開關將系統置于手動模式,系統將不進行聯動;當無人員在被保護區域時,可通過轉換開關將系統置于自動模式,以便火災報警系統能自動聯動氣體滅火。當被保護的區域內發生火災時,按下“按下噴灑”按鍵,即可向氣體滅火控制器發出氣體噴灑請求信號,氣體滅火控制器按預設邏輯開始啟動聲光報警、關閉空調風閥等,經延時后,啟動氣體噴灑電磁閥。在延時期間,若現場人員確認無火災發生或現場有人沒有撤離,可立即按下“停止”按鍵,中止延時。
轉換開關為編碼方式,占一個編碼點;轉換開關同時具有系統模式轉換功能和緊急啟、停功能。
主要技術指標如下:
(1)工作電壓:總線24V,允許范圍:DC16V~DC28V
(2)工作電流:監視電流 ≤3mA 報警電流≤6mA
(3)編碼方式:電子編碼方式,編碼范圍可在11~20之間任意設定
(4)啟動方式:人工按下“按下噴灑”按鍵
(5)啟動零件類型:重復使用型
(6)復位方式:用專用鑰匙復位
(7)指示燈:
延時:紅色,系統處于延時啟動階段時點亮;
啟動:紅色,控制器啟動存放滅火氣體的鋼瓶的電磁閥時點亮;
噴灑:紅色,滅火氣體開始噴灑時點亮;
自動:黃色,系統處于自動模式時點亮;
手動:綠色,系統處于手動模式時點亮。
(8)線 制:與氣體滅火控制器采用無極性兩線制連接
(9)使用環境:
溫 度:-10℃~+55℃
● GST-DY-200型電源箱
GST-DY-200型電源箱是一種DC24V大容量電源輸出設備,在火災報警控制系統中,可作為聯動控制系統的電源使用,為聯動控制模塊及被控設備供電。電源箱以交流220V作為主電源,同時內置DC24V/7Ah密封鉛電池作為備用電源,采用開關電源穩壓電路及備電浮充電路,具有輸出過流自動保護、主備電切換和完善的備電自動充電及備電過放電保護功能。同時,本智能電源箱可對主、備電及電源輸出狀態進行監控,可報主、備電故障、輸出故障,還具有輸出電壓、輸出電流的顯示功能,可直觀地觀察電源箱的工作狀態。主要技術指標如下:
(1)額定輸出容量:DC24V、6A
(2)使用環境:
溫度:0℃~+40℃
相對濕度≤95%,不結露
(3)電源:主電為交流220V-15%,內裝DC24V 7Ah密封鉛電池作備電
(4)外形尺寸:
310mm×400mm×115mm
JTY-GF-GST9711(Ex)型點型光電感煙火災探測器
JTY-GF-GST9711(Ex)點型光電感煙火災探測器利用紅外散射技術,采用進口光電器件,提高了傳感器的可靠性、穩定性和一致性,并采用獨特的迷宮設計,防蟲、防塵、抗外界光線干擾性能良好。產品結構新穎、外型美觀、性能穩定可靠、抗潮濕性強,并具有良好的抗化學腐蝕性。本探測器防爆類型為本質安全型,防爆標志為ExibIICT6,適用于石油、化工等行業具有防爆要求的1區及2區使用。本探測器為非編碼型,與GST-LD-8332模塊箱配合使用,可接入本公司生產的各類火災報警控制器,完成對探測器信號的處理。本探測器是我公司推出的最新產品,同時還具有以下特點:
(1)專業造型設計,超薄型;
(2)超大指示燈指示,360度范圍可見;
(3)具有溢水孔設計,防止積水滲漏;
(4)迷宮設計獨特,抗灰塵污染性強;
(5)自診斷、自補償、自學習;
(6)迷宮為專利產品,專利號為:ZL03100624.8。
主要技術指標如下:
(1)工作電壓:DC16V~DC28V
(2)靜態電流≤60μA (注:靜態時探測器可工作在DC16V~DC28V電壓范圍內)
(3)報警電流≤30mA
(4)安全柵參數:U0=28V,I0=93mA
(5)防爆標志:ExibIICT6
(6)報警確認燈:紅色,正常時閃亮,報警時常亮
(7)使用環境:
溫度:-10℃~+55℃
相對濕度≤95%,不結露
大氣壓力:86kPa~106kPa
(8)外殼防護等級:IP32
(9)探測器尺寸:
直徑:100mm ,高:54.5mm(帶底座)
JTW-ZOF-GST9712(Ex)型點型感溫火災探測器
JTW-ZOF-GST9712(Ex)型點型感溫火災探測器是利用熱敏元件對溫度的敏感性來檢測環境溫度,內置單片機,固化高可靠火災判斷程序,并采用特殊工藝進行處理,工作穩定可靠,且具有良好的抗化學腐蝕性。適用于石油、化工等行業具有防爆要求的1區及2區使用。本探測器為非編碼型,與GST-LD-8332模塊箱配合使用,可以直接接入各類火災報警控制器,完成探測器的信號處理。本探測器是我公司推出的最新產品,同時還具有以下特點:
(1)專業造型設計,超薄型;
(2)超大指示燈指示,360度范圍可見;
(3)具有溢水孔設計,防止積水滲漏。
主要技術指標如下:
(1)探測器類別:A1R
(2)工作電壓:DC16V~DC28V
(3)監視電流≤60µA (注:靜態時探測器可工作在DC16V~DC28V電壓范圍內)
(4)報警電流≤30mA
(5)安全柵參數:U0=28V,I0=93mA
(6)防爆標志:ExibIICT6
(7)報警確認燈:紅色,正常時閃亮,報警時常亮
(8)使用環境:
溫度:-10℃~+50℃
相對濕度≤95%,不結露
大氣壓力:86kPa~106kPa
(9)外殼防護等級:IP33
(10)探測器尺寸:
直徑:100mm ,高:51.3mm(帶底座)
GST-LD-8331型模塊箱
GST-LD-8331型模塊箱由GST-LD-8303模塊、GST-AS-300安全柵和模塊箱外殼組成,可與J-SAF-GST9213(Ex)消火栓按鈕配接,組成本質安全型防爆系統,一旦發生火災,現場人員按下消火栓報警按鈕,模塊箱將報警信號通過總線傳入控制器,控制器會顯示出該編碼地址的報警信號。當模塊箱出現故障時,控制器會顯示出該編碼地址的故障信號。模塊箱具有檢線功能,當與消火栓按鈕的連接線出現短路、斷路時,模塊箱會向控制器報故障。模塊箱采用電子編碼方式,編碼范圍在1~242之間任意設定,可通過我公司生產的GST-BMQ-2型電子編碼器進行現場編碼。模塊箱應安裝在安全區域。
主要技術指標如下:
(1)工作電壓:
總線電壓:總線24V
電源電壓:DC24V
(2)監視電流:
總線電流≤0.8mA
電源電流≤10mA
(3)報警電流:
總線電流≤3.4mA
電源電流≤60mA
(4)連接設備類型:J-SAF-GST9213(Ex)消火栓按鈕
(5)連接設備容量:最多10只
(6)安全柵型號:GST-AS-300
(7)安全柵參數:U0=28V,I0=93mA,L0≤4.0mH,C0≤0.083mF
(8)外殼防護等級:IP55
(9)使用環境:
溫度:-10℃~+55℃
相對濕度≤95%,不結露
(10)外形尺寸:196mm×215mm×86mm
GST-LD-8333型模塊箱
GST-LD-8333型模塊箱GST-LD-8333型模塊箱由GST-LD-8301模塊、GST-AS-200安全柵和模塊箱外殼組成GST-LD-8333型模塊箱可與GST-HX-F8501/2火災聲/聲光警報器配接,組成本質安全型防爆系統。模塊箱接收到火災報警控制器發出的啟動命令后,啟動現場的本安型警報器,并將動作信息傳回火災報警控制器。當出現DC24V電源故障或與現場的本安型警報器連線發生故障時,模塊箱將向火災報警控制器發送故障信號。模塊箱應安裝在安全區域。
主要技術指標如下:
(1)工作電壓:
總線電壓:總線24V
電源電壓:DC24V
(2)監視電流:
總線電流≤0.7mA
電源電流≤9mA
(3)動作電流:
總線電流≤0.8mA
電源電流≤24mA
(4)連接設備類型:GST-HX-F8501火災聲警報器或GST-HX-F8502火災聲光警報器
(5)連接設備容量:1只
(6)安全柵型號:GST-AS-200
(7)安全柵參數:U0=28V,I0=93mA,L0≤4.0mH,C0≤0.083mF
(8)外殼防護等級:IP55
(9)使用環境:
溫度:-10℃~+55℃
相對濕度≤95%,不結露
(10)外形尺寸:196mm×215mm×86mm
六、七氟丙烷滅火系統設計方案
設計計算依據:《氣體滅火系統設計規范》GB50370-2005
《建筑設計防火規范》 GBJ16-87
《柜式氣體滅火裝置》GB16670-2006
《潔凈氣體滅火系統標準》NFPA2001
《氣體滅火系統施工及驗收規范》GB50263-97
《火災自動報警系統設計規范》 GB50116-98
客戶提供的有關圖紙和技術資料。
設計范圍:
弱電間及機房。
選用滅火方式:
采用柜式半固定滅火系統設備,實行全淹沒滅火。
設計計算過程:
滅火劑用量計算:
確定防護區滅火設計濃度依據《氣體滅火系統設計規范》(GB50370-2005)中有關規定,檢測室滅火濃度取C=8%;
2、計算防護區的凈空容積(m3):
機房:V =136.8m3
3、滅火劑用量計算:
根據《氣體滅火系統設計規范》(GB50370-2005)中七氟丙烷設計用量的計算公式:
W=K·(V/S)·[C/(100-C)]
式中 W —七氟丙烷的滅火設計用量(Kg);
K —海拔高度修正系數;(取K=1)
C —七氟丙烷滅火設計濃度(%);
S —七氟丙烷過熱蒸汽在101Kpa和預防區最低環境溫度下的比
容(m3/Kg),
V —防護區的凈容積(M3);
其中: S = K1+ K2T
式中: T —溫度(℃)
K1 —0.1269
K2 —0.0005130 20℃時,S=0.13716;
得防護區的滅火劑用量如下:
檔案庫房: W = K·(V/S)·[C/(100-C)]
=1´(200/0.13716)´[10/(100-10)]
=170kg
4、滅火劑儲存量計算:
機房:由設計用量W=170kg,選用2套GQQ90/2.5型柜式滅火裝置,根據我公司產品氣體滅火系統設計手冊90L每瓶充裝85 kg。
設計參數及結果匯總:
1、柜式系統參數表
| 防護區名稱 | 設計濃度(%) | 凈容積(m£) | 設計用量(kg) | 儲存量(kg) | 瓶組數(個) | 型 號 | 泄壓口面積(m2) |
| 檔案庫房 | 8 | 200 | 170 | 90 | 2 | GQQ90/2.5 | 0.07 |
注:防護區泄壓口宜設在外墻上,應位于防護區凈高的2/3以上。當防護區設有外開的彈簧門或配有彈性閉門器的外開門,其門的開口面積不小于泄壓口計算面積時,可不需另設泄壓口。
2、柜式系統設備組成及系統示意圖

一、培訓計劃表
| 培訓項目 | 培 訓 內 容 | 培 訓 對 象 | 培訓日期建議 | 培 訓 師 資 | 培 訓 地 點 |
|
系 統 維 護 和 操 作 培 訓 |
1. 氣體系統滅火的物理及化學機理 2. 氣體滅火系統的設計原理 3. 各易耗件的使用周期、工作原理、維修方法 |
買方維護、操作人員 | 視買方公司具體安排,共計半天 | 氣體系統服務工程師 | 由雙方協商決定 |
|
1. 氣體滅火系統電磁閥、容器閥、選擇閥及滅火設備的安裝及操作步驟 2. 氣體滅火系統的日常保養、月度保養、年度保養內容及方法 |
買方操作維護人員 | 視買方公司具體安排,共計半天 | 氣體系統服務工程師 |
二、培訓計劃概述。
我公司提供詳細的培訓計劃,包括培訓項目、主要內容、培訓時間、培訓地點及培訓考核方式等。培訓的形式包括理論課程和實際操作兩種,培訓的目的應使培訓人員熟悉設備功能,并能順利進行系統設備的實際操作、日常保養和維修。我公司在設備開箱清點前,安裝前免費對施工安裝單位及買方人員進行設備安裝調試培訓。我公司在培訓前三個月向買方及監理工程師提交培訓大綱和具體的課程設置等書面資料,經買方核準后開始培訓。買方有權根據實際工程進度變更培訓計劃。
1.培訓對象、人數、周期和地點等安排
培訓對象:買方的系統設備管理的維修人員。
培訓地點:安裝調試現場或工程安裝工地現場。
培訓安排:安排安裝工地現場培訓和工廠理論及操作培訓各一次,總培訓時間不少于8個工作日,直至對方受培訓人員能夠上崗操作為止。
2.主要培訓項目內容。
我公司對買方有關工程技術人員進行設備性能說明、設備安裝、調試、系統操作、設備保養、維修等內容的培訓,主要分為工廠培訓和工地培訓:
A、工廠培訓項目
技術培訓
設備的滅火原理。
設備的構成。
設備動作原理。
設備的操作方法。
設備的日常檢查維護方法。
設備常見故障及排除原理。
操作培訓
七氟丙烷滅火系統自動運行操作原理。
七氟丙烷滅火系統手動運行操作原理。
七氟丙烷滅火系統機械應急操作原理。
現場更換壓力表操作原理。
每年例行維護保養項目操作原理。
B、工地培訓項目
七氟丙烷滅火系統與報警系統聯動試驗操作原理。
報警系統模擬驅動滅火系統試驗操作原理。
日常系統運行環境監督檢查內容。
緊急情況現場處理方法。
3.有關培訓責任與費用安排
我公司選派的教員均為是經驗豐富的工程師或技師。還將提供培訓所需的所有設施、專用器材;免費提供系統的書面培訓資料,包括設備的原理、結構、設備操作規程及維修課程。我公司人員在工程所在地進行培訓期間所發生的一切費用(含交通、食宿、通訊、辦公)自理。買方需要到我公司培訓的人員費用由雙方協商后確定。
八.技術支持承諾和售后服務承諾
一、售后服務承諾
(一)售前服務
為業主提供產品的樣本、系統設計說明書、產品安裝使用說明書等資料,隨時解答業主提出的問題,依據產品特點和設計要求為業主提供最優化的系統配置方案;保持與本工程消防系統設計人員緊密聯系,提供全方位技術咨詢服務;保持與消防安裝單位的長期合作與溝通,就公司產品的安裝使用具體要求對消防安裝單位集中培訓講解。(二)售中服務
1)保證設備在設備購銷合同簽訂后及時供貨,單據及時安全到達業主手中,為設備在運輸過程中有貨損問題,與業主將盡快洽商妥善處理;設備運抵業主倉庫后,在業主倉庫由業主、消防安裝單位、我公司有關人員共同對設備開箱驗貨,若發現設備短缺和外觀破損,我公司保證及時處理。2)在設備安裝階段,派技術人員就每一項產品的安裝方法向消防安裝單位做示范,就公司產品安裝使用的具體要求和注意事項定期培訓,負責作好《培訓記錄表》。
3)在系統調試前,向業主提交《系統調試方案》,經業主許可后,開始系統調試。系統調試后,記錄系統配置點位及聯動編程等內容,填寫《消防報警/聯動系統調試竣工報告》,同時積極配合消防主管部門、安裝單位進行系統驗收。
4)對系統調試中反映的有代表性的質量問題以及用戶和技術服務人員對產品提出的改進建議等,項目指揮部在匯總后填寫《異常質量信息反饋/落實表》,會同相關部門商討解決方案,并將處理結果呈報業主備案。
(三)售后服務
1)我公司將按照招標文件要求指導設備安裝和系統調試。2)質保期為自系統經消防主管部門正式驗收之日起,雙方確認后,我公司負責免費維修 24 個月 。并實行終身保修,免費對業主的消防管理人員進行培訓。
3)質保期內因產品質量、非人員操作等原因而導致我公司所提供的系統設備損壞,我公司將免費予以維修、更換。
4)質保期外當系統設備出現故障時,我公司將按維修、更換故障設備的成本價格收取費用。
5)對用戶在實際使用中遇到的有關產品問題,我公司將隨時給予答復。
6)當系統設備出現故障時,我公司技術人員將在接到通知后2個小時之內到達現場,8小時內恢復,更換部件的保修期從更換后再延長一年。
7)我公司將向業主按成本價長期提供備品、備件及專用工具。
8)為保持本系統的先進性,我公司將向業主提供系統所用設備的更新換代信息。
9)我公司INTERNET網主頁(http://www.anf.com.cn)中有最新的系統操作手冊、軟件手冊、安裝手冊、調試手冊、維護手冊、開發手冊、以及我公司新產品的介紹、軟/硬件的更新方法、消防技術發展動向等,以便業主人員可以隨時了解本工程所用產品的性能、安裝、調試、維護、開發方法,以及所用產品的更新換代信息。
(四)售后維修服務機構
公司擁有一支工程經驗豐富、專業技術過硬、服務意識強,面向全國用戶作出快速、便捷反應的的工程技術服務隊伍,遇有重大系統故障時,總公司將直接調撥專業技術人員趕赴現場進行維護修理。二、技術支持承諾
1.深化承諾
我公司承諾將按照甲方招標文件的要求,同時結合施工方及現場的實標情況,對圖紙免費進行二次深化設計和完善,并提供CAD施工圖繪制文件、
同時我們將按照招標單位的要求及有關規定及時提供工程的全部有關資料,包括全套的產品及技術資料、圖紙及相應的電子版。
我公司將對本工程建立完整的項目檔案,包括設備清單、深化設計圖約、安裝及調試技術資料、維修紀錄等,以方便各項服務的管理及資料查詢、
2.保修期時間承諾
設備安裝并經驗收合格后,系統開通進入正常工作運行狀態中,為了確保系統的安全可靠運行,更好的發揮系統的防火能力,減少甲方不必要的麻煩,針對本消防工程的具體情況,我公司選定了全面的維保服務計劃書,將服務的時間和內容以書面形式落到實處。為體現我公司用戶至上的服務理念,我公司提供給用戶免費的質量保證期為合同所列全部系統設備驗收合格,簽署驗收報告,自交付使用之日起24個月。
3.保修期內維保內容承諾
系統驗收后,將向業主提交以下技術文件以作竣工資料:系統操作及維護手冊,系統各相關設備說明書。
3.1建立工程檔案:工程竣工并投入使用后,為用戶建立工程,以便為用戶提供準確的服務。
3.2定期電話訪問:經用戶同意按周或月定期進行電話巡訪,隨時接受并答甲方有關人員的電話咨詢。
3.3備品備件更換:對由于設備質量問題造成的損壞,我公司將到現場免費維修或更換損壞的設備。對其他原因造成的器件損壞,我公司將對損壞的器件作有償維修或更換。
3.4故障響應:設備發生故障后,接到用戶的故障通知2小時內派技術人員到達現場排除故障。
3.5備件服務:我公司將備有充足的備件、配件,可及時向招標方提供技術服務和備件服務。
4.保修期內維保計劃承諾
我公司在全國各地設有有售后服務中心,以滿足全國市場對設備使用過程中出現的質量問題進行維修保養。
4.1人員計劃:由售后服務中心的技術、調試骨干人員擔任本工程售后服務人員,保證售后服務的效率及質量。
4.2培訓計劃:整套系統設備驗收完成后,我公司的工程技術人員將根據用戶需求對用戶的技術及管理人員進行現場培訓,向用戶講授說明各種設備的安裝、保養和應該注意的事項,使用戶能夠盡快地熟悉設備的性能和使用。在設備正常運行后根據用戶要求定期對用戶有關人員進行系統培訓,增強業務能力及技術素質。
4.3備品備件計劃:設備供貨合同簽訂后,我公司將儲備足數量的備品備件,以備用戶緊急需要。
5.保修期滿后維護保養計劃的承諾
維保服務質量關系到消防設備使用期限的長短及消防系統能否保證正常運行,我公司為了真正做到為用戶負責,切實落實以服務為核心的理念,并提供給用戶一個全面的、系統的、可靠的、安全的、周到的維保需求,確保合同范圍內的設備能夠可靠無故障運行,同時提供給用戶一個放心滿意安全的維護服務工程。
(一)、保修期滿后維保服務程序
電話預約→用戶同意→確定維護保時間→按時上門服務→用戶簽認
(二)、保修期滿后維保服務內容
在保修期維保服務的基礎上,繼續完善對本工程服務,確保設備不因使用年限而影響可靠性。
備品備件更換:對損壞設備及時維修或更換。
故障響應:設備發生故障后,接到用戶的故障通知后2小時內派技術人員到達現場排除故障
定期檢測:按用戶要求或滿足消防系統規范及行業管理規定編制維保檢測方案并實施。
6.保修金額度的承諾
6.1在保修期內,我公司承諾將嚴格按照保修期時間、保修期保內容和維保計劃執行,對由于設備質量問題造成的損壞,我公司將到現場免費維修或更換損壞的設備。對其它原因造成的器件損壞,我公司將對損壞的器件作有償維修或更換,維修或更換的設備單價將不超過合同設備的單價。
6.2在保修期滿后,我公司承諾嚴格按照保修期滿后的維保內容和維保計劃執行,對損壞的器件作有償維修或更換,維修或更換的設備費用的單價承諾三年內將不超過合同設備的單價。
機房七氟丙烷系統,無管網氣體滅火施工安裝,有管網氣體滅火施工安裝,北京消防氣體滅火施工安裝,北京氣體滅火系統,七氟丙烷氣體滅火系統,氣體滅火,北京氣體滅火,北京氣體滅火裝置,北京氣體滅火裝置,氣體滅火系統原理,氣體自動滅火系統
| 企業名稱: 智淼君安(江蘇)消防工程技術有限公司 |
| 企業地址: 江蘇省常熟市虞山公園白云新村 |
| 手 機: 18910580194 |
| 聯 系 人: 何經理 |
| Q Q: 1334605518 |
| 郵 箱: 1334605518@qq.com |
|
網 址: www.gstxf.com |
智淼君安(江蘇)消防工程技術有限公司http://m.luvata-china.com/
海灣消防安全有限公司主營:GST海灣消防報警設備銷售,消防工程施工改造,氣體滅火、電氣/漏電火災、消防水系統施工安裝,售后維修保養,檢測,調試,海灣消防網站:http://m.luvata-china.com/;海灣消防服務熱線:4006-598-119
本頁關鍵詞:
上一篇:沒有了! 下一篇:消防氣體滅火機房維保事項
技術資料更多 >>


蘇公網安備32058102002148號